
Purnhagen-Immobilien
004 ···
Nr. anzeigenPreise & Kosten
Provision für Käufer
Je 3,57 % vom notariellen Kaufpreis inkl. ges. MwSt. durch Käufer u. Verkäufer zu zahlen.
Lage
Dieses freistehende 1-Fam.-Haus befindet sich in absolut ruhiger und gesuchter Wohnlage von Schwanewede-Löhnhorst. Trotz der ruhigen Lage sind die Zentren von Bremen-Vegesack und Schwanewede schnell erreicht. Hier finden Sie alle Einkaufsmöglichkeiten des täglichen Bedarfs sowie Ärzte unterschiedlicher Fachrichtungen. Kitas...
Das Haus
Kategorie
Einfamilienhaus
Baujahr
1980
Energie & Heizung
Warum sehe ich diese Anzeige? – Du siehst diese Anzeige basierend auf Ihrer Navigation auf unserer Website und den Suchkriterien, die du verwendet hast.
Energieausweistyp
Bedarfsausweis
Gebäudetyp
Wohngebäude
Wesentliche Energieträger
GAS
Gültigkeit
bis 09.03.2036
Effizienzklasse
E
Endenergiebedarf
152,90 kWh/(m²·a)
Weitere Energiedaten
Haustyp
Massivhaus
Energieträger
Gas
Heizungsart
offener Kamin, Zentralheizung
Details
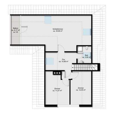
Objektbeschreibung
Der großzügige Grundriss des Hauses bietet eine Gesamtwohnfläche von ca. 197 m², bei folgender Aufteilung: Im Erdgeschoss empfängt Sie ein einladender Flurbereich von dem alle Räumlichkeiten der Etage zugänglich sind. Zur rechten Seite befindet sich der offen gestaltete Küchen- und Wohnbereich. Die Küche ist dabei mit einer...
Ausstattung
Dieses Haus ist mit 2-fach-isolierverglasten Holzfenstern ausgestattet, welche zusätzlich über elektrische Rollläden verfügen. Die Beheizung erfolgt über eine Gas-Brennwerttherme mit angeschlossener Warmwasserbereitung aus dem Jahr 2022. Der bedarfsorientierte Energieausweis weist einen Endenergiebedarf von 152,9 kWh(m²*a)...
Weitere Informationen
Stichworte
Nutzfläche: 77,00 m², Anzahl der Badezimmer: 2, Anzahl Balkone: 1, Anzahl Terrassen: 1
Anbieter der Immobilie
Online-ID: 2p3cg54
Referenznummer: 326001
Finde Angebote wie dieses
Hier geht es zu unserem Impressum, den Allgemeinen Geschäftsbedingungen, den Hinweisen zum Datenschutz und nutzungsbasierter Online-Werbung.