Riwog Real Estate Management GmbH

Herr Maximilian Michael Zillner, MBA

Traum-Aussicht im Zentrum von Gablitz I Terrasse I 2 Badezimmer I Ruhelage

€ 1.199
Gesamtmiete
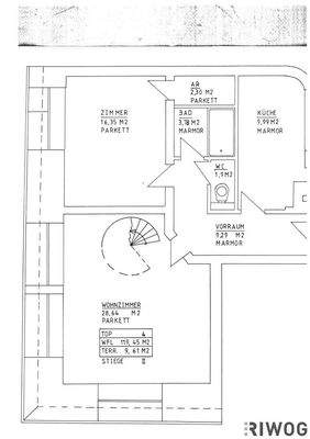
119,45 m²
Wohnfläche ca.
4
Zimmer

Der Anbieter dieses Objekts hat gegenüber der AVIV Germany GmbH als Betreiber dieses Online-Marktplatzes erklärt, nicht als Unternehmer im Sinne des § 1 KSchG zu handeln. Die im Verbraucherschutzrecht der Union verankerten Verbraucherrechte (insbesondere Informationspflichten und Rücktritts- bzw. Widerrufsrechte) finden auf den Vertrag zwischen dem Anbieter des Objekts und Ihnen (dem Interessenten) keine Anwendung.

Gewerblicher Anbieter

Der Anbieter dieses Objekts hat gegenüber der AVIV Germany GmbH als Betreiber dieses Online-Marktplatzes erklärt, als Unternehmer im Sinne des § 1 KSchG zu handeln.

AdresseStraße nicht freigegeben
3003 Gablitz 
Auf Karte ansehen

Preise & Kosten

Gesamtmiete € 1.199 Nettomiete auf Anfrage

Kaution

4.796,00 €

Provision für Mieter

Gemäß Erstauftraggeberprinzip bezahlt der Abgeber die Provision.

Lage

Die Wohnung

Kategorie

Terrassenwohnung

Wohnungslage

2. Geschoss

Bezug

sofort

  • Bad mit Fenster und Wanne
  • Terrasse
  • Einbauküche
  • Böden: Fliesenboden, Laminat, Parkett
  • Zustand: gepflegt

Wohnanlage

  • Zustand: Neubau

Details

Objektbeschreibung

An der Hauptstraße im Zentrum von Gablitz - Nähe Linzer Straße / Wiener Straße I Maisonettewohnung I 4-Zimmer mit separater Küche und Terrasse I 2. Stock

Ideal für Pärchen und Familien

 

Hardfacts

Maisonettewohnung

4-Zimmer mit Terrasse

separate Küche

2. Stockwerk (kein...

Mehr anzeigen

Weitere Informationen

Stichworte
Süd-West-Balkon/Terrasse, Freifläche: 9,61 m², Anzahl der Badezimmer: 2, Anzahl der separaten WCs: 2, Anzahl Terrassen: 1, Balkon-Terrassen-Fläche: 9,61 m², Bundesland: Niederösterreich

Anbieter der Immobilie

Partner

Riwog Real Estate Management GmbH

im Durchschnitt  5,00  Sterne
(bei 2 Bewertungen)

Börsegasse 12, 1010 WIEN

Geschäftszeiten
user

Herr Maximilian Michael Zillner, MBA

Dein Ansprechpartner

Anbieter-Profil Anbieter-Impressum

Online-ID: 2p38m53

Referenznummer: OBGC20260324112920558a1709029f5

Finde Angebote wie dieses

imageimageimage

Hier geht es zu unserem Impressum, den Allgemeinen Geschäftsbedingungen, den Hinweisen zum Datenschutz und nutzungsbasierter Online-Werbung.