

living immo Regensburg GmbH
Frau Martina Brummer
+49 ···
Nr. anzeigenPreise & Kosten
Provision für Käufer
3,57 % inkl. MwSt. Weitere Informationen siehe Provisionshinweis.
Lage
Thumhausen liegt im Markt Nittendorf im Landkreis Regensburg. Die Umgebung ist geprägt von Natur, Ruhe und hoher Lebensqualität. Einkaufsmöglichkeiten, Schulen, Kindergärten sowie ärztliche Versorgung befinden sich im nahegelegenen Nittendorf. Die Stadt Regensburg ist in kurzer Zeit erreichbar und bietet eine hervorragende...
Das Haus
Kategorie
Mehrfamilienhaus
Baujahr
1975
Bezug
sofort
Energie & Heizung
Warum sehe ich diese Anzeige? – Du siehst diese Anzeige basierend auf Ihrer Navigation auf unserer Website und den Suchkriterien, die du verwendet hast.
Energieausweistyp
Bedarfsausweis
Gebäudetyp
Wohngebäude
Wesentliche Energieträger
Öl
Gültigkeit
25.03.2026 bis 25.03.2026
Effizienzklasse
F
Endenergiebedarf
192,10 kWh/(m²·a)
Weitere Energiedaten
Energieträger
Öl
Details
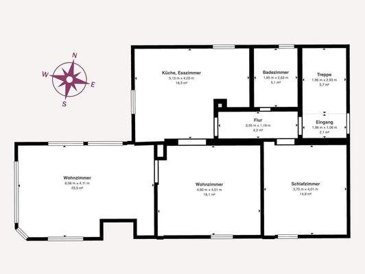
Objektbeschreibung
In idyllischer Lage von Thumhausen, einem Ortsteil des Marktes Nittendorf, erwartet Sie dieses renovierungsbedürftige Zweifamilienhaus aus dem Baujahr 1975 mit herrlichem Blick auf die Schwarze Laber.
Das Haus steht auf einem großzügigen Grundstück mit 1.298 m² und bietet eine Wohnfläche von ca. 163 m². Durch die...
Ausstattung
Baujahr: 1975
Grundstücksfläche: ca. 1.298 m²
Wohnfläche: ca. 163 m²
4 Zimmer
3 Schlafzimmer
2 Badezimmer
3 Küchen (bzw. Küchen-Anschlüsse)
Voll unterkellert
Öl-Zentralheizung (Installation von weiteren Heizkörpern im Gebäude notwendig)
Fenster erneuert im Jahr 2000
Edelstahl-Außenkamin...
Preisinformation
2 Carportplätze
Weitere Informationen
Provisionshinweis
3,57 % inkl. MwSt. vom beurkundeten Kaufpreis - Käuferprovision
Die Immobilie fällt unter das Gesetz zur Verteilung der Maklerkosten bei der Vermittlung von Kaufverträgen über Wohnungen und Einfamilienhäuser (optional mit Einliegerwohnung) im Bürgerlichen Gesetzbuch (§§ 652 bis 656 BGB) vom 23.12.2020...
Anbieter der Immobilie
living immo Regensburg GmbH
Emmeramsplatz 7, 93047 Regensburg

Online-ID: 2p2x553
Referenznummer: ZFH-NITTENDORF-THUMHAUSEN-001
Finde Angebote wie dieses
Hier geht es zu unserem Impressum, den Allgemeinen Geschäftsbedingungen, den Hinweisen zum Datenschutz und nutzungsbasierter Online-Werbung.