
TWE-Immobilien Thomas Erthle e. K.
Frau Viola Pawelczyk
+49 ···
Nr. anzeigenPreise & Kosten
Provision für Käufer
3,57 % inkl. MwSt.
Abschreibung/Anlage
Denkmalschutz-Afa
Lage
Die denkmalgeschützte Haus- und Hofanlage befindet sich im Herzen von Mittenaar-Bicken im mittelhessischen Lahn-Dill-Kreis. Der Ortsteil bietet eine ruhige, naturnahe Lage mit gleichzeitig guter Infrastruktur.
In der direkten Umgebung befinden sich eine Apotheke, eine Hausarztpraxis, eine Kindertageseinrichtung und...
Das Haus
Kategorie
Bauernhaus
Baujahr
1780
Derzeitige Nutzung
frei
Energie & Heizung
Warum sehe ich diese Anzeige? – Du siehst diese Anzeige basierend auf Ihrer Navigation auf unserer Website und den Suchkriterien, die du verwendet hast.
Energieausweis: für diesen Gebäudetyp nicht notwendig
Details
Objektbeschreibung
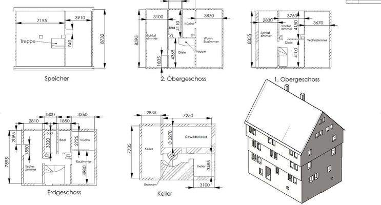
Dieses charmante Fachwerkhaus mit angrenzender Scheune befindet sich in ruhiger Dorflage von Mittenaar-Bicken. Das ca. im 18. Jahrhundert errichtete Gebäudeensemble steht unter Denkmalschutz und bietet mit etwa 227 m² Wohnfläche und einer Grundstücksgröße von insgesamt ca. 2.100 m² (inkl. Gartenflächen) viel Raum für...
Ausstattung
- denkmalgeschütztes Fachwerkhaus aus dem 18. Jahrhundert
- 3 Vollgeschosse + ausgebautes Dachgeschoss
- 8 Zimmer, 3 Bäder, 2 Küchen mit Option auf eine dritte
- Gewölbekeller, eigener Brunnen
- teilweise möbliert mit antiken Möbeln und Geräten
- Parkettböden in allen Wohn- und Dielenbereichen
- Fliesen in...
Preisinformation
4 Stellplätze
1 Garagenstellplatz
Weitere Informationen
Sonstiges
Ein Energieausweis ist aufgrund des Denkmalschutzes nicht erforderlich.
Wir freuen uns auf Ihre Kontaktaufnahme.
Wir vermitteln - mit Sicherheit.
Stichworte
Sonstiges/Wohnen: Dachboden
Anbieter der Immobilie
Online-ID: 2p2r454
Referenznummer: 2884 (1/2884)
Finde Angebote wie dieses
Hier geht es zu unserem Impressum, den Allgemeinen Geschäftsbedingungen, den Hinweisen zum Datenschutz und nutzungsbasierter Online-Werbung.