
allkauf haus Südwest
Herr David Schmitt
+49 ···
Nr. anzeigenPreise & Kosten
Provision für Käufer
Bitte beachte, das Angebot kann bei Vertragsabschluss die Zahlung einer Provision beinhalten. Weitere Informationen erhältst Du vom Anbieter.
Lage
Die Doppelhaushälfte befindet sich in einer attraktiven Wohngegend von Wiesloch, die eine ruhige und familienfreundliche Umgebung bietet. Die Infrastruktur ist hervorragend mit guter Anbindung an öffentliche Verkehrsmittel, Schulen und Einkaufsmöglichkeiten. Freizeitmöglichkeiten in der Nähe sorgen für eine hohe...
Das Haus
Kategorie
Doppelhaushälfte
Baujahr
2026
Energie & Heizung
Warum sehe ich diese Anzeige? – Du siehst diese Anzeige basierend auf Ihrer Navigation auf unserer Website und den Suchkriterien, die du verwendet hast.
Weitere Energiedaten
Haustyp
KfW 55
Details
Objektbeschreibung
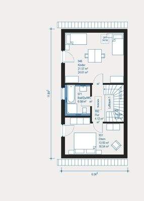
Diese projektiert geplante Doppelhaushälfte in Wiesloch bietet Ihnen mit 3.0 Zimmern und einer Wohnfläche von 113,64 m² auf einem 202,80 m² großen Grundstück ein maßgeschneidertes Zuhause. Das Haus verfügt über zwei Etagen, zwei Schlafzimmer, ein modernes Badezimmer sowie ein zusätzliches Gäste-WC und erfüllt den KFW55...
Ausstattung
Zu der hochwertigen Ausstattung dieser Doppelhaushälfte zählen unter anderem eine moderne Luft-Wasser-Wärmepumpe, dreifach verglaste Fenster mit Aluminiumrollläden, eine Echtholztreppe, hochwertige Bodenbeläge und Tapeten, Innentüren, Zargen und Fliesen sowie Sanitärobjekte. Die haustechnische Ausstattung beinhaltet ein...
Weitere Informationen
Sonstiges
allkauf steht für maximale Sicherheit, kurze Lieferzeiten und garantierte Fertigstellung. Durch die Festpreis- und Liefergarantie sowie die Fertigstellungsgarantie genießen Sie hohe Planungssicherheit ohne unerwartete Mehrkosten. Mit drei Dienstleistungspaketen - VIELBESCHÄFTIGTE, AMBITIONIERTE und HEIMWERKER -...
Anbieter der Immobilie
allkauf haus Südwest
Am Alten Schwimmbad 5, 66450 Bexbach
Online-ID: 2p2ql55
Referenznummer: 3893-393-kw13-69836
Finde Angebote wie dieses
Hier geht es zu unserem Impressum, den Allgemeinen Geschäftsbedingungen, den Hinweisen zum Datenschutz und nutzungsbasierter Online-Werbung.