
Dr. Krüger Immobilien GmbH
004 ···
Nr. anzeigenPreise & Kosten
Kaution
3.150,00
Warum sehe ich diese Anzeige? – Du siehst diese Anzeige basierend auf Ihrer Navigation auf unserer Website und den Suchkriterien, die du verwendet hast.
Lage
Freital befindet sich in der Mitte von Sachsen und ist ca. 10 Kilometer vom Zentrum Dresdens entfernt. Eine zentrale Anlaufstelle ist der Busbahnhof Freital, Deuben. Der nächstgelegene Bahnhof, Freital-Potschappel, ist 5 bis 10 Minuten zu Fuß entfernt.
Einkaufsmöglichkeiten wie der Weißeritz-Park, sind in wenigen...
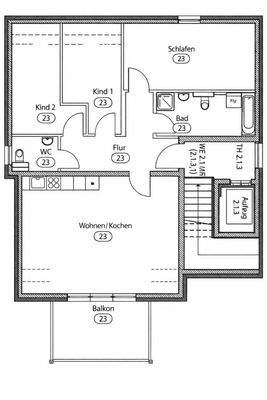
Die Wohnung
Wohnungslage
4. Geschoss (Dachgeschoss)
Bezug
01.06.2026
Wohnanlage
Energie & Heizung
Warum sehe ich diese Anzeige? – Du siehst diese Anzeige basierend auf Ihrer Navigation auf unserer Website und den Suchkriterien, die du verwendet hast.
Energieausweistyp
Bedarfsausweis
Gebäudetyp
Wohngebäude
Baujahr laut Energieausweis
2024
Wesentliche Energieträger
ERDGAS_LEICHT
Gültigkeit
bis 04.06.2034
Effizienzklasse
A+
Endenergiebedarf
24,60 kWh/(m²·a)
Weitere Energiedaten
Energieträger
Elektro, Fernwärme
Heizungsart
Luft-/Wasser-Wärmepumpe, Zentralheizung
Details
Objektbeschreibung
Zur Vermietung gelangt eine attraktive 4- Zimmer Wohnung im Dachgeschoss, in einer Wohnanlage welche 2024 erbaut wurde.
Vom großzügigen Wohnzimmer mit offener Küche gelangt man auf den Balkon, der an schönen Tagen zum Verweilen einlädt. Außenjalousien ermöglichen einen Sonnen- und Sichtschutz.
Für einen...
Ausstattung
+ bodentiefe Fenster
+ Badewanne & Dusche
+ offener Wohn- und Kochbereich
+ Fußbodenheizung
+ Vinylboden
+ Balkon
+ elektrische Außenjalousien
+ Tiefgaragenstellplatz
+ Personenaufzug
+ Kellerabteil
Preisinformation
1 Tiefgaragenstellplatz, Miete: 70,00 EUR
Weitere Informationen
Sonstiges
Die Eigentümer wünschen einen Staffelmietvertrag. Die Staffelmiete setzt sich wie folgt zusammen:
nach 3 Jahren erhöht sich die Kaltmiete auf 1.103,00 € zzgl. Betriebskostenvorauszahlung und TG Stellplatz
nach 6 Jahren erhöht sich die Kaltmiete auf 1.146,00 € zzgl. Betriebskostenvorauszahlung und TG...
Anbieter der Immobilie
Online-ID: 2p2kt53
Referenznummer: 224062
Finde Angebote wie dieses
Hier geht es zu unserem Impressum, den Allgemeinen Geschäftsbedingungen, den Hinweisen zum Datenschutz und nutzungsbasierter Online-Werbung.