

Mulfinger Immobilien
Herr Volker Mulfinger
017 ···
Nr. anzeigenPreise & Kosten
Kaution
3.560,00 3560
Warum sehe ich diese Anzeige? – Du siehst diese Anzeige basierend auf Ihrer Navigation auf unserer Website und den Suchkriterien, die du verwendet hast.
Lage
Lage: Das angebotene Reihenmittelhaus befindet sich in einem Neubaugebiet in Eckersmühlen. Eckersmühlen ist ein Gemeindeteil der Kreisstadt Roth im Landkreis Roth (Mittelfranken, Bayern). Die Gemeinde Eckersmühlen hat 2776 Einwohner und über die Bundesstraße 2 ist Nürnberg in ca. 20 Minuten erreichbar. Die A9 (München -...
Das Haus
Baujahr
2026
Energie & Heizung
Warum sehe ich diese Anzeige? – Du siehst diese Anzeige basierend auf Ihrer Navigation auf unserer Website und den Suchkriterien, die du verwendet hast.
Energieausweistyp
Bedarfsausweis
Gebäudetyp
Wohngebäude
Baujahr laut Energieausweis
2026
Gültigkeit
22.10.2025 bis 01.10.2035
Effizienzklasse
B
Endenergiebedarf
48,40 kWh/(m²·a)
Weitere Energiedaten
Energieträger
Fernwärme, Pellets
Heizungsart
Fußbodenheizung
Details
Ausstattung
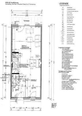
Gebäude: Das Gebäude wird voraussichtlich im Februar 2026 in Massivbauweise (KFW 40) fertig gestellt werden und wird über Nahwärme beheizt. Im Erdgeschoss des Hauses befinden sich ein großzügiger Wohn- /Essbereich mit einer offenen Küche, eine Diele und ein Gäste - WC.
Unter der Treppe, die ins Obergeschoss führt, ist ein...
Preisinformation
2 Stellplätze
Weitere Informationen
Sonstiges
Bitte beachten Sie mein vollständiges Angebot unter www.mulfinger-immobilien.de
Stichworte
Stellplatz vorhanden, Garage vorhanden, Süd-Balkon/Terrasse, Breitband Zugang: Glasfaser mit 1000 Mbit/Sec, Anzahl der Schlafzimmer: 4, Anzahl der Badezimmer: 2, Anzahl der separaten WCs: 3, Anzahl Terrassen: 1, 3...
Anbieter der Immobilie
Mulfinger Immobilien
Braungardtstr. 13, 91325 Adelsdorf

Online-ID: 2p2hn57
Referenznummer: 576
Finde Angebote wie dieses
Hier geht es zu unserem Impressum, den Allgemeinen Geschäftsbedingungen, den Hinweisen zum Datenschutz und nutzungsbasierter Online-Werbung.