
Königskinder Immobilien GmbH
Herr Andreas Maier
004 ···
Nr. anzeigenPreise & Kosten
Provision für Käufer
3,57 % vom Kaufpreis inkl. gesetzl. MwSt.
Lage
Die Uhlandshöhe - eine der begehrtesten Wohnlagen Stuttgarts!
Die Uhlandshöhe zählt zu den exklusivsten und traditionsreichsten Wohnlagen der Landeshauptstadt Stuttgart. Gelegen zwischen Innenstadt und grünen Höhenzügen vereint sie auf einzigartige Weise urbanes Leben mit naturnaher Ruhe. Die erhöhte Lage bietet ein...
Das Haus
Kategorie
Mehrfamilienhaus
Baujahr
1938
Energie & Heizung
Warum sehe ich diese Anzeige? – Du siehst diese Anzeige basierend auf Ihrer Navigation auf unserer Website und den Suchkriterien, die du verwendet hast.
Energieausweistyp
Bedarfsausweis
Gebäudetyp
Wohngebäude
Baujahr laut Energieausweis
2004
Wesentliche Energieträger
GAS
Gültigkeit
bis 04.01.2036
Effizienzklasse
H
Endenergiebedarf
357,70 kWh/(m²·a)
Details
Objektbeschreibung
Toplage Uhlandshöhe:
Exklusives 3-Familienhaus in ruhiger Sackgasse - EG-Wohnung sofort verfügbar!
Mieteinnahmen ca. 55.000 € p. a.
In einer der begehrtesten Wohnlagen Stuttgarts, auf der Uhlandshöhe, präsentiert sich dieses außergewöhnlich schöne und großzügige 3-Familienhaus in absolut ruhiger Lage am Ende...
Ausstattung
* Sehr ruhige Lage am Ende einer Sackgasse
* Großes Grundstück 693 m²
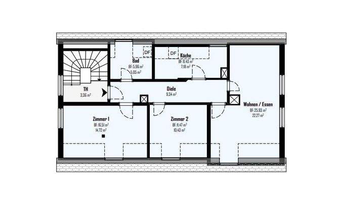
* Erdgeschosswohnung (leerstehend): 103,71 m² + 4,43 m² Nutzfläche
* 1. Obergeschoss (vermietet): 96,76 m² + 3,01 m² Nutzfläche
* Dachgeschoss (vermietet): 68,99 m² + 3,36 m² Nutzfläche
* 3 Garagen mit Starkstromanschluss (2 Garagen sind...
Weitere Informationen
Sonstiges
Da wir uns bei allen Angaben auf die Informationen Dritter stützen müssen, können wir keine Gewähr für deren Richtigkeit und Vollständigkeit übernehmen.
Bitte haben Sie Verständnis dafür, dass wir nur Anfragen mit vollständiger Adressangabe und erreichbarer Handynummer bearbeiten können.
Nachdem...
Anbieter der Immobilie
Online-ID: 2p2hj53
Referenznummer: LDW1.AM.10644
Finde Angebote wie dieses
Hier geht es zu unserem Impressum, den Allgemeinen Geschäftsbedingungen, den Hinweisen zum Datenschutz und nutzungsbasierter Online-Werbung.