
Evernest GmbH
Jannek Sönnichsen
+49 ···
Nr. anzeigenPreise & Kosten
Provision für Käufer
3.57 inkl. MwSt.
Bei Abschluss eines notariellen Kaufvertrages ist eine Käuferprovision vom Käufer in Höhe von 3.57 % inkl. MwSt. aus dem Kaufpreis fällig.
Lage
Der Nordosten Schleswig-Holsteins ist bekannt für seine vielfältige und wunderschöne Natur mit malerischen Buchten und Stränden, grünen Hügellandschaften mit leuchtenden Rapsfeldern sowie zahlreichen Naturschutzgebieten mit einer reichen Flora und Fauna. Inmitten dieser einzigartigen Naturlandschaft entsteht das Ostsee-Resort...
Die Wohnung
Wohnungslage
Dachgeschoss
Wohnanlage
Details
Objektbeschreibung
Diese liebevoll gestaltete Ferienwohnung verbindet das Besondere mit purem Lebensgefühl. Die Lage könnte kaum schöner sein! Nur wenige Schritte trennen euch vom Hafenbecken des Resorts und auch der beliebte Weidefelder Strand ist bequem fußläufig erreichbar. Hier erwartet euch ein Rückzugsort, der Arbeit und Urlaub auf...
Ausstattung
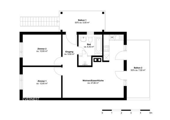
- 2 Schlafzimmer
- Einbauküche
- Kaminofen
- Duschbad mit Infrarot-Wärmekabine
- Voll möbliert
- 2 Balkone
- 2 Pkw-Außenstellplätze
- Ladestation für Elektrofahrzeuge
- Abschließbarer Fahrradschuppen
Weitere Informationen
Energiepass
Energieausweis wird bei Besichtigung vorgelegt.
Stichworte
Stellplatz vorhanden, Anzahl der Schlafzimmer: 2, Anzahl der Badezimmer: 1, Anzahl Balkone: 2
Anbieter der Immobilie
Online-ID: 2p2fm52
Referenznummer: L-KHHZHZM
Finde Angebote wie dieses
Hier geht es zu unserem Impressum, den Allgemeinen Geschäftsbedingungen, den Hinweisen zum Datenschutz und nutzungsbasierter Online-Werbung.