
IMMOHANSA Immobilien GmbH & Co. KG
Frau Tessa Dudek
004 ···
Nr. anzeigenPreise & Kosten
Provision für Käufer
3,57 % inkl. MwSt.
Lage
Die Gemeinde Deutsch Evern zählt zu den gefragten Wohnstandorten im direkten Einzugsgebiet der Hansestadt Lüneburg und überzeugt durch ihre ruhige, gewachsene Wohnstruktur sowie die unmittelbare Nähe zur Stadt.
Der Standort profitiert insbesondere von seiner stadtnahen Lage zu Lüneburg, einem wirtschaftlich stabilen...
Das Renditeobjekt
Kategorie
Mehrfamilienhaus
Baujahr
1960
Bezug
sofort
Frei ab
vermietet
Energie & Heizung
Warum sehe ich diese Anzeige? – Du siehst diese Anzeige basierend auf Ihrer Navigation auf unserer Website und den Suchkriterien, die du verwendet hast.
Energieausweistyp
Bedarfsausweis
Gebäudetyp
Wohngebäude
Baujahr laut Energieausweis
2018
Wesentliche Energieträger
OEL
Gültigkeit
bis 23.03.2036
Effizienzklasse
D
Details
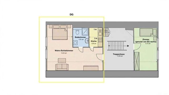
Objektbeschreibung
Dieses charmante Mehrfamilienhaus in der Dorfstraße 24 in Deutsch Evern präsentiert sich als attraktives Investment in ruhiger und gefragter Wohnlage. Das im Landhausstil im Jahr 1960 errichtete Gebäude mit charakteristischen Fachwerkelementen vereint zeitlosen Charme mit solider Bauqualität und bietet Kapitalanlegern eine...
Ausstattung
+ Mehrfamilienhaus im Landhausstil mit Fachwerkelementen
+ Baujahr ca. 1960
+ 5 WE mit unterschiedlichen Wohnungsgrößen
+ ca. 300 m² Gesamtwohnfläche
+ ca. 800 m² Grundstücksfläche
+ eine Einheit mit separatem Eingang und eigenem Garten
+ Linke EG-Wohnung 2021 umfassend saniert und modernisiert
+ Dach im...
Weitere Informationen
Sonstiges
Sie erreichen unser Büro unter (04131) 776 442.
Ihre direkte Ansprechpartnerin: Frau Tessa Dudek
Unsere Homepage finden Sie unter www.immohansa.de
Bitte haben Sie Verständnis dafür, dass wir Ihre Anfrage nach einem ausführlichen Exposé mit genauer Lage des Objektes, Grundrisszeichnungen...
Anbieter der Immobilie
IMMOHANSA Immobilien GmbH & Co. KG
Bunsenstr. 8, 21365 Adendorf
Online-ID: 2p2dv54
Referenznummer: IH51687
Finde Angebote wie dieses
Hier geht es zu unserem Impressum, den Allgemeinen Geschäftsbedingungen, den Hinweisen zum Datenschutz und nutzungsbasierter Online-Werbung.