
RE/MAX Grafschaft Bentheim
Frau Nele Willering
004 ···
Nr. anzeigenPreise & Kosten
Kaution
Auf Anfrage
Provision für Mieter
Bitte beachte, das Angebot kann bei Vertragsabschluss die Zahlung einer Provision beinhalten. Weitere Informationen erhältst Du vom Anbieter.
Warum sehe ich diese Anzeige? – Du siehst diese Anzeige basierend auf Ihrer Navigation auf unserer Website und den Suchkriterien, die du verwendet hast.
Lage
Die Gemeinde Uelsen liegt im Landkreis Grafschaft Bentheim, unweit der niederländischen Grenze, und zeichnet sich durch ihre strategisch günstige Lage und ausgezeichnete Infrastruktur aus.
Uelsen ist über die Bundesstraße B403 und nahegelegene Autobahnen (A30 und A31) gut erreichbar. Diese bieten schnelle...
Die Immobilie
Zu diesem Angebot wurden vom Anbieter keine weiteren Daten hinterlegt. Für weitere Informationen bitte den Anbieter kontaktieren.
Nach Informationen fragenDetails
Objektbeschreibung
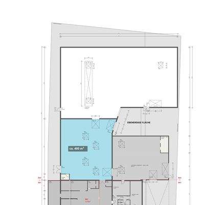
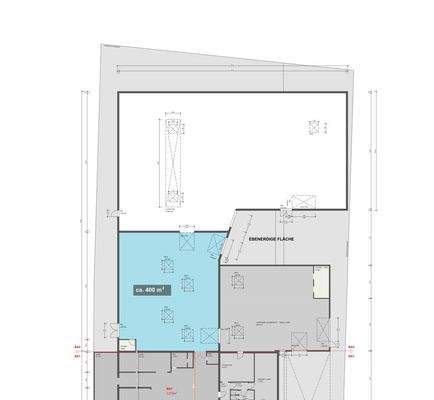
Diese vielseitig nutzbare Gewerbehalle befindet sich im ausgewiesenen Industriegebiet (GI) von Uelsen und bietet optimale Voraussetzungen für unterschiedlichste betriebliche Anforderungen. Durch die Lage im Gewerbegebiet ist ein Betrieb rund um die Uhr (24/7) problemlos möglich.
Flächenangebot
Ca. 400 m²...
Preisinformation
Auf Anfrage
Weitere Informationen
Sonstiges
Energieausweis ist in Bearbeitung.
Widerrufsbelehrung für Verbraucher
Sie haben das Recht, binnen vierzehn Tagen ohne Angabe von Gründen diesen Vertrag zu widerrufen. Die Widerrufsfrist beträgt vierzehn Tage ab dem Tag des Vertragsabschlusses.
Um Ihr Widerrufsrecht auszuüben, müssen Sie uns
RE/MAX...
Anbieter der Immobilie
Online-ID: 2p27k55
Referenznummer: 1049-114
Finde Angebote wie dieses
Hier geht es zu unserem Impressum, den Allgemeinen Geschäftsbedingungen, den Hinweisen zum Datenschutz und nutzungsbasierter Online-Werbung.