

Grossmann & Berger GmbH
Herr Daniel van Rechtern
+49 ···
Nr. anzeigenPreise & Kosten
Provision für Käufer
3,57 % inkl. MwSt.
Lage
Die Immobilie befindet sich in Hamburg-Niendorf, einem äußerst familienfreundlichen und infrastrukturstarken Stadtteil im Hamburger Norden. Niendorf zeichnet sich durch seine grüne Umgebung, gekoppelt mit einer ausgezeichneten Anbindung an die Hamburger Innenstadt, aus.
Einkaufsmöglichkeiten des täglichen Bedarfs bieten...
Das Haus
Kategorie
Einfamilienhaus
Baujahr
1938
Bezug
kurzfristig
Energie & Heizung
Warum sehe ich diese Anzeige? – Du siehst diese Anzeige basierend auf Ihrer Navigation auf unserer Website und den Suchkriterien, die du verwendet hast.
Energieausweistyp
Bedarfsausweis
Gebäudetyp
Wohngebäude
Baujahr laut Energieausweis
2005
Wesentliche Energieträger
OEL
Gültigkeit
bis 11.02.2036
Effizienzklasse
H
Endenergiebedarf
322,10 kWh/(m²·a)
Weitere Energiedaten
Energieträger
Öl
Details
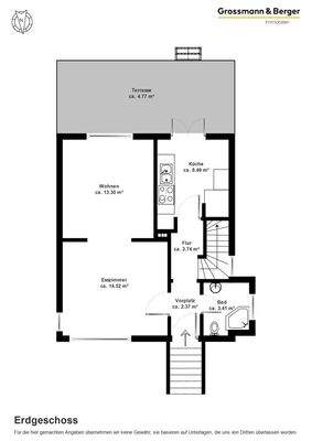
Objektbeschreibung
Das zum Verkauf stehende Einfamilienhaus wurde in den Jahren 1938 bis 1939 auf einem ca. 792 m² großen Grundstück mit optimaler Süd-Ausrichtung erbaut. Das Gebäude verfügt über eine Wohnfläche von ca. 80 m² im Erd- und Dachgeschoss. Diese Fläche verteilt sich auf 3,5 Zimmer. Darüber hinaus bietet der ausgebaute Spitzboden...
Ausstattung
Die Immobilie sowie die Bausubstanz präsentieren sich in einem soliden Zustand. Optisch und technisch befindet sich das Gebäude jedoch in einem sanierungsbedürftigen Zustand.
Die Einbauküche und das Duschbad stammen ca. aus den 1990er Jahren. Die Fassade besteht aus einem zweischaligen Mauerwerk und ist außen verputzt. Das...
Preisinformation
2 Carportplätze
Weitere Informationen
Stichworte
Nutzfläche: 74,85 m², Anzahl der Schlafzimmer: 2, Anzahl der Badezimmer: 1, Anzahl Terrassen: 1, Bundesland: Hamburg, Distanz zum Kindergarten: 0.09, Distanz zur Grundschule: 2.30, Distanz zur nächsten Einkaufsmöglichkeit: 1.00, Distanz zum Gymnasium: 1.60, Distanz zum Flughafen: 6.10, Distanz zur Autobahn: 3.10...
Anbieter der Immobilie

Online-ID: 2p23q53
Referenznummer: WB 10042
Finde Angebote wie dieses
Hier geht es zu unserem Impressum, den Allgemeinen Geschäftsbedingungen, den Hinweisen zum Datenschutz und nutzungsbasierter Online-Werbung.