
Immo&Finanz Markus Büser
Herr Markus Büser
029 ···
Nr. anzeigenPreise & Kosten
Provision für Käufer
4,76 % inkl. ges. MwSt.
Lage
Röllecken ist mit ca. 430 Einwohnern ein Ortsteil der Stadt Attendorn im Kreis Olpe (Nordrhein-Westfalen). Der Ort liegt östlich des Kernortes Attendorn an der Landesstraße L 880 im Repetal.
Sowohl in Attendorn, Grevenbrück und Finnentrop finden Sie alles, was Sie zum täglichen Leben...
Das Haus
Kategorie
Mehrfamilienhaus
Baujahr
1960
Energie & Heizung
Warum sehe ich diese Anzeige? – Du siehst diese Anzeige basierend auf Ihrer Navigation auf unserer Website und den Suchkriterien, die du verwendet hast.
Weitere Energiedaten
Energieträger
Öl
Heizungsart
Zentralheizung
Details
Objektbeschreibung
Das ursprünglich 1960 massiv erbaute 3-Familienhaus wird zur Zeit mit zwei Wohnungen vermietet.
Kellergeschoss mit ca. 51 qm Wohnfläche!
Erd- und Dachgeschoss mit ca. 129 qm Wohnfläche!
Es kann ohne großen Aufwand wieder in drei Wohnungen umfunktioniert werden.
Ausstattung
wesentliche Ausstattungsmerkmale:
1960 Baujahr in massiver Bauweise
2000 ca. Dach-Neueindeckung mit Betondachsteinen und Natur-Einschieferung der Dachgauben
2010 Bad-Modernisierung im Erdgeschoss
2015 ca. teilweise neue Kunststofffenster in Holzobtik (ca. 10 Stück)
2015 ca. neue Elektrik inkl...
Weitere Informationen
Sonstiges
Ein Energieausweis ist in Bearbeitung!
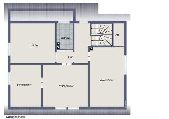
Die Grundrisse finden Sie unter der Rubrik "Dokumente" als PDF-Format in größerer und besserer Abbildung!
Habe ich Ihr Interesse geweckt?
Benötigen Sie eine Beratung bezüglich Ihrer Finanzierung? Dann können Sie hier alles aus einer Hand bekommen!
Ich...
Dokumente
Anbieter der Immobilie
Online-ID: 2nzzr5v
Referenznummer: 693 (1/693)
Finde Angebote wie dieses
Hier geht es zu unserem Impressum, den Allgemeinen Geschäftsbedingungen, den Hinweisen zum Datenschutz und nutzungsbasierter Online-Werbung.