
Dorn Living Solutions Immobilien
Tom Dorn I Edith Voss
015 ···
Nr. anzeigenPreise & Kosten
Provision für Käufer
2% exkl. MwSt.
Käufer- und Verkäuferprovision, jeweils 2% exkl. MwSt. berechnet vom Kaufpreis, fällig und zahlbar bei Abschluss des notariellen Kaufvertrages.
Lage
Weinheim ist eine beliebte Stadt an der idyllischen Bergstraße mit mediteranem Flair, der romantischen Altstadt, dem wunderschönen Marktplatz sowie dem Wahrzeichen Weinheims - die 2 Burgen. Die Region ist äußerst beliebt und sehr gefragt.
Highlights sind der bekannte Exotenwald, der malerische Schlosspark und der weit über...
Das Haus
Kategorie
Villa
Baujahr
1970
Bezug
nach Absprache
Energie & Heizung
Warum sehe ich diese Anzeige? – Du siehst diese Anzeige basierend auf Ihrer Navigation auf unserer Website und den Suchkriterien, die du verwendet hast.
Weitere Energiedaten
Energieträger
Öl
Heizungsart
offener Kamin, Zentralheizung
Details
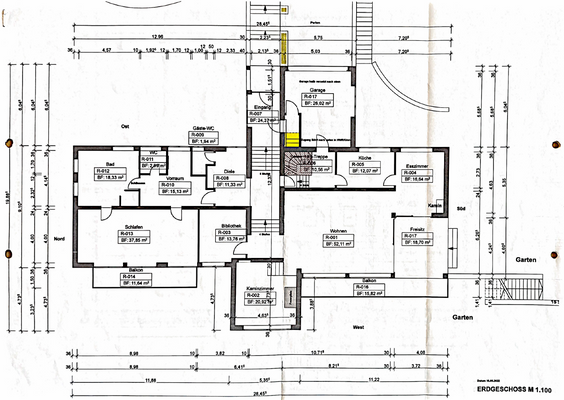
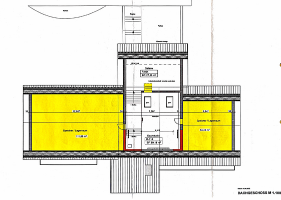
Objektbeschreibung
Hoch über Weinheim, eingebettet in eine der begehrtesten Lagen der Bergstraße, erwartet Sie eine außergewöhnliche Villa mit spektakulärem Panoramablick über die Rheinebene. Von hier aus schweift der Blick über Weinheim, Mannheim, Heidelberg, die Pfalz, die Vogesen bis hin zum Schwarzwald - ein Ausblick, der jeden Tag aufs...
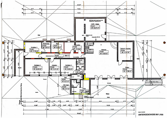
Ausstattung
Architektur und Raumgefühl:
. Repräsentatives Entrée mit großzügigem Foyer
. Großzügige Wohnbereiche mit bis zu ca. 70 m² Raumgröße
. Bodentiefe Panoramafenster und große Schiebetüren
. Lichtdurchflutete Räume mit beeindruckendem Blick über die Rheinebene
. Mehrere Sonnenloggien, Terrassen und...
Preisinformation
4 Garagenstellplätze
Weitere Informationen
Sonstiges
Sollten Sie einen Teil der großen Villa zum Arbeiten nutzen wollen, so finden Sie eine exzellente Work-Life Balance. Alle Wohn- und Lebensräume sind ideal für persönliche und gesellschaftliche Aktivitäten.
Lassen Sie sich von der einzigartigen Lage und vom Charme dieser außergewöhnlichen Luxus-Villa überzeugen...
Anbieter der Immobilie
Dorn Living Solutions Immobilien
Büttemerweg 3, 69493 Großsachsen
Online-ID: 2nzxq5w
Referenznummer: DLS 161
Finde Angebote wie dieses
Hier geht es zu unserem Impressum, den Allgemeinen Geschäftsbedingungen, den Hinweisen zum Datenschutz und nutzungsbasierter Online-Werbung.