
LEIPZIG estate Ihr Immobilienexperte Tews, Ohnesorge, Kupferschmied, Anscheit GbR
Frau Carolin Slowikowski
004 ···
Nr. anzeigenPreise & Kosten
Kaution
2.400,00
Warum sehe ich diese Anzeige? – Du siehst diese Anzeige basierend auf Ihrer Navigation auf unserer Website und den Suchkriterien, die du verwendet hast.
Lage
Der traditionsreiche Standort Borna befindet sich in der Wirtschaftsregion Mitteldeutschland. Chemie- und Kunststoffindustrie, Kommunikations- und Steuerungstechnik, Bau und Dienstleistungsgewerbe sowie Handel
sind die dominierenden Branchen. Die Nähe zum prosperierenden Oberzentrum Leipzig soll den Zugang zu neuen Märkten...
Die Wohnung
Wohnungslage
Erdgeschoss
Bezug
01.05.2026
Wohnanlage
Energie & Heizung
Warum sehe ich diese Anzeige? – Du siehst diese Anzeige basierend auf Ihrer Navigation auf unserer Website und den Suchkriterien, die du verwendet hast.
Energieausweistyp
Verbrauchsausweis
Gebäudetyp
Wohngebäude
Wesentliche Energieträger
GAS
Gültigkeit
bis 16.06.2020
Endenergieverbrauch
138,40 kWh/(m²·a)
Weitere Energiedaten
Energieträger
Gas
Heizungsart
Zentralheizung
Details
Objektbeschreibung
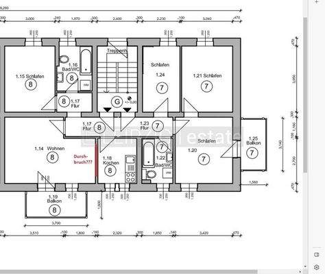
Hier können wir aus zwei 2 Raumwohnungen durch einen Durchbruch im Flur eine große 4 RWG (mit zwei Küchen) oder eine 5 RWG (Rückbau einer Küche) herrichten.
Beide Wohnungen sind noch bewohnt. Die linke Wohnung ist möbliert. Renovierungszustand etc sind daher noch nicht bekannt - und Absprachefähig.
Kurz: Bei...
Ausstattung
- 4 oder 5 Räume
- je nachdem ob 1 oder 2 Küchen
- zwei Balkone
- Laminat, Fliesen, PVC
- angenehm große Wohn- und Schlafräume
- Tageslichtbäder mit Wanne und WM-Anschluss
- separate Küche
- Einbauküche vorhanden
Weitere Informationen
Sonstiges
Es liegt ein Energieverbrauchsausweis vor.
Dieser ist gültig bis 16.6.2020.
Endenergieverbrauch beträgt 138.40 kwh/(m²*a).
Wesentlicher Energieträger der Heizung ist Gas.
Alle Angaben zum Objekt und dem Mietpreis, sowie Größen der Wohnungen beruhen auf den Angaben des Eigentümers. Für die...
Anbieter der Immobilie
LEIPZIG estate Ihr Immobilienexperte Tews, Ohnesorge, Kupferschmied, Anscheit GbR
Waldstr.55, 04105 Leipzig
Online-ID: 2nzw95z
Referenznummer: CS-FL31-5rwg
Finde Angebote wie dieses
Hier geht es zu unserem Impressum, den Allgemeinen Geschäftsbedingungen, den Hinweisen zum Datenschutz und nutzungsbasierter Online-Werbung.