
Ilgen GmbH Servicebüro
Herr Josef Ilgen
026 ···
Nr. anzeigenPreise & Kosten
Provision für Käufer
3,57% inkl. MwSt.
Lage
Bullay - Wohnen wo andere Urlaub machen in einzigartiger Lage!!
Bullay ist ein rheinland-pfälzischer Ort an der Mosel und gehört zum Landkreis Cochem-Zell.
Durch die verkehrsgünstige und zentrale Lage von Bullay, eröffnet sich Ihnen ein idealer Ausgangspunkt für Ausflüge in das Moseltal, sowie in die benachbarte...
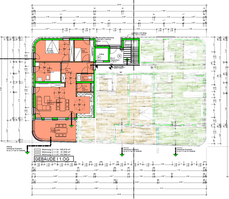
Die Wohnung
Wohnungslage
1. Geschoss
Bezug
sofort
Wohnanlage
Energie & Heizung
Warum sehe ich diese Anzeige? – Du siehst diese Anzeige basierend auf Ihrer Navigation auf unserer Website und den Suchkriterien, die du verwendet hast.
Energieausweistyp
Bedarfsausweis
Gebäudetyp
Wohngebäude
Wesentliche Energieträger
Pelletheizung
Gültigkeit
06.02.2025 bis 06.02.2035
Effizienzklasse
B
Weitere Energiedaten
Energieträger
Pellets
Details
Objektbeschreibung
Wohnen mit Moselblick
Diese großzügige Wohnung im 1. Obergeschoss mit ca. 103,61 m² Wohnfläche bietet zwei helle Zimmer und einen offenen Wohn-/Essbereich mit Küche sowie einen Außenbereich mit Balkon und Blick zur Mosel. Ein Tageslichtbad mit ebenerdiger Dusche sowie ein Gäste-WC runden das Raumangebot der...
Ausstattung
Highlights
- 3 lichtdurchflutete Zimmer
- Balkon mit Moselblick
- Barrierefreier Zugang
- eigener Tiefgaragenstellplatz (im Kaufpreis enthalten)
- Nur ca. 2 Gehminuten zum Bahnhof
- Neubau-Standard, helle und freundliche Gestaltung
Details
Kategorie: Eigentumswohnung
Wohnfläche: ca. 103...
Preisinformation
1 Stellplatz
Weitere Informationen
Stichworte
Tiefgarage vorhanden, Anzahl der Schlafzimmer: 2, Anzahl der Badezimmer: 1, Anzahl der separaten WCs: 1, Balkon-Terrassen-Fläche: 19,50 m²
Sonstiges/Wohnen: seniorengerechtes Wohnen
Anbieter der Immobilie
Ilgen GmbH Servicebüro
Kurfürstenstr. 56, 56864 Bad Bertrich
Online-ID: 2nzvj5r
Referenznummer: 22#Ku0DiT
Finde Angebote wie dieses
Hier geht es zu unserem Impressum, den Allgemeinen Geschäftsbedingungen, den Hinweisen zum Datenschutz und nutzungsbasierter Online-Werbung.