

Immobilienbüro G. Hofmeister
Frau Grit Hofmeister-Jung
034 ···
Nr. anzeigenPreise & Kosten
Kaution
3165
Warum sehe ich diese Anzeige? – Du siehst diese Anzeige basierend auf Ihrer Navigation auf unserer Website und den Suchkriterien, die du verwendet hast.
Lage
Die Immobilie befindet sich in belebter Wohnlage in Leipzig Plagwitz. In Laufnähe gibt es ein paar Restaurants, Ärzte, Cafés, Bäckereien und Supermärkte. Auch verschiedene Grün- und Parkanlagen, Fitnessstudios, Modegeschäfte, Bars und Buchhandlungen erreichen Sie.
Südlich von der Antonienstraße gelegen, finden Sie den...
Die Wohnung
Wohnungslage
2. Geschoss
Bezug
sofort
Derzeitige Nutzung
frei
Wohnanlage
Energie & Heizung
Warum sehe ich diese Anzeige? – Du siehst diese Anzeige basierend auf Ihrer Navigation auf unserer Website und den Suchkriterien, die du verwendet hast.
Energieausweis: für diesen Gebäudetyp nicht notwendig
Weitere Energiedaten
Energieträger
Fernwärme
Heizungsart
Zentralheizung
Details
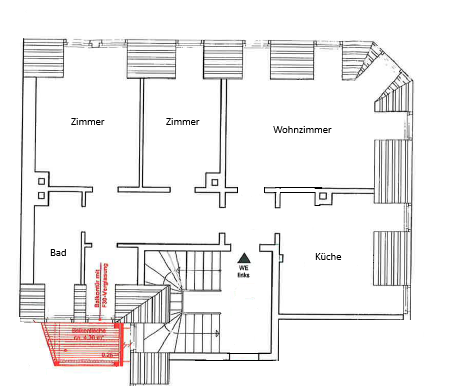
Objektbeschreibung
Die Wohnung befindet sich in einem neu sanierten Mehrfamilienhauses.
Es handelt sich um ein Eckobjekt.
Die 3 Zimmer-Wohnung befindet sich im 2.Obergeschoss
Ausstattung
Erstbezug nach Sanierung
helle 3 Zimmer-Wohnung im 2.OG
Balkon mit seitlicher Südausrichtung von der sep. Küche abgehend
Bad mit Fenster und Wanne
Laminat in Dielenoptik
geräumiges Wohnzimmer
sep. Schlafzimmer
Kinderzimmer hofseitig
AK auf dem Treppenebene
gehobene...
Weitere Informationen
Sonstiges
Hier könnten Sie Ihr Traumdomizil gefunden haben.
Deshalb zögern Sie nicht länger und rufen noch heute an und vereinbaren einen Besichtigungstermin.
Ihr Immobilienbüro G. Hofmeister
Alle Angaben und Grundrisse erhielten wir vom Eigentümer, eine Haftung ist...
Anbieter der Immobilie
Immobilienbüro G. Hofmeister
Am Mühlteich 30, 04808 Wurzen OT Mühlbach

Online-ID: 2nzuw5f
Referenznummer: 6-GI (1/2363)
Finde Angebote wie dieses
Hier geht es zu unserem Impressum, den Allgemeinen Geschäftsbedingungen, den Hinweisen zum Datenschutz und nutzungsbasierter Online-Werbung.