

Otthon Centrum
Herr Robert Poldauf
+36 ···
Nr. anzeigenPreise & Kosten
Provision für Käufer
provisionsfrei
Das Haus
Kategorie
Reihenendhaus
Bezug
sofort
Derzeitige Nutzung
frei
Energie & Heizung
Warum sehe ich diese Anzeige? – Du siehst diese Anzeige basierend auf Ihrer Navigation auf unserer Website und den Suchkriterien, die du verwendet hast.
Energieausweis: für diesen Gebäudetyp nicht notwendig
Weitere Energiedaten
Energieträger
Elektro, Solar
Heizungsart
Fußbodenheizung, Luft-/Wasser-Wärmepumpe
Details
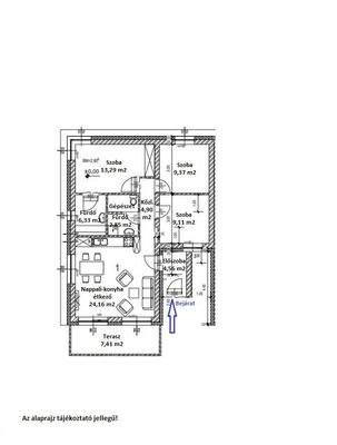
Objektbeschreibung
Das erste Haus im Reihenhaus.
Geschmackvoll gestaltet und sofort bezugsfertig!
Dieses hügelige, nach Südost ausgerichtete Grundstück mit Panoramablick befindet sich in einem ruhigen, grünen Bereich von Hévíz.
Darauf wurden drei einstöckige Wohngebäude mit einer Nutzfläche von je 75 m² errichtet.
Im dazugehörigen...
Weitere Informationen
Die Daten beruhen ausschließlich auf den Informationen, die uns von unseren Auftraggebern zur Verfügung gestellt wurden.
Aus diesem Grund übernehmen wir keine Verantwortung für die Vollständigkeit, Richtigkeit und Aktualität der Daten.
Preisänderungen, Datenänderungen sowie ein Zwischenverkauf bleiben vorbehalten...
Anbieter der Immobilie

Online-ID: 2nztl5v
Referenznummer: U0049506
Finde Angebote wie dieses
Hier geht es zu unserem Impressum, den Allgemeinen Geschäftsbedingungen, den Hinweisen zum Datenschutz und nutzungsbasierter Online-Werbung.