
Engel & Völkers Immobilien Deutschland GmbH
Engel & Völkers Berlin-Brandenburg MMC
+49 ···
Nr. anzeigenPreise & Kosten
Provision für Käufer
3.57 % inkl. gesetzl. MwSt.
Der Makler-Vertrag mit uns kommt durch die Bestätigung der Inanspruchnahme unserer Maklertätigkeit in Textform zustande. Die Höhe der Courtage richtet sich nach den ab dem 23. Weitere Informationen siehe Provisionshinweis.
Lage
Goyatz liegt als staatlich anerkannter Erholungsort direkt am Südufer des Schwielochsees in der Gemeinde Schwielochsee im Landkreis Dahme-Spreewald und bietet eine ruhige, naturnahe Lage mit sehr guter Grundversorgung. Der Ort ist über die Bundesstraße 320 sowie mehrere Landesstraßen gut an das Umland und den Spreewald...
Das Haus
Kategorie
Einfamilienhaus
Geschosse
3 Geschosse
Baujahr
1999
Bezug
Nach Vereinbarung
Energie & Heizung
Warum sehe ich diese Anzeige? – Du siehst diese Anzeige basierend auf Ihrer Navigation auf unserer Website und den Suchkriterien, die du verwendet hast.
Energieausweistyp
Bedarfsausweis
Gebäudetyp
Wohngebäude
Baujahr laut Energieausweis
1999
Gültigkeit
seit 06.03.2026
Effizienzklasse
D
Endenergiebedarf
115,40 kWh/(m²·a)
Weitere Energiedaten
Energieträger
Gas
Heizungsart
Fußbodenheizung, offener Kamin
Details
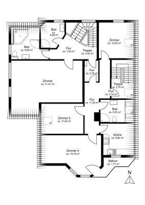
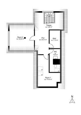
Objektbeschreibung
In exklusiver Lage an der eigenen Privatstraße in Goyatz präsentiert sich dieses 1999 errichtete Einfamilienhaus mit Einliegerwohnung und insgesamt 274 m² Wohnfläche sowie 319 m² Nutzfläche. Das vollständig unterkellerte Haus garantiert Privatsphäre und Ruhe sowie Großzügigkeit für Mehrgenerationen mit insgesamt 6 Badezimmern...
Ausstattung
Einbauküche, Study, Yes, Childrens Pool, außen, Private
Weitere Informationen
Provisionshinweis
3.57 % inkl. gesetzl. MwSt.
Der Makler-Vertrag mit uns kommt durch die Bestätigung der Inanspruchnahme unserer Maklertätigkeit in Textform zustande. Die Höhe der Courtage richtet sich nach den ab dem 23.12.2020 in Kraft getretenen gesetzlichen Regelungen zur Teilung der Maklercourtage. Hiernach wird...
Anbieter der Immobilie
Online-ID: 2nzsx5s
Referenznummer: I-0481T0-W-0481T0
Finde Angebote wie dieses
Hier geht es zu unserem Impressum, den Allgemeinen Geschäftsbedingungen, den Hinweisen zum Datenschutz und nutzungsbasierter Online-Werbung.