

X2 Immobilien
Frau Julia Schwarz
065 ···
Nr. anzeigenPreise & Kosten
Provision für Käufer
Bitte beachte, das Angebot kann bei Vertragsabschluss die Zahlung einer Provision beinhalten. Weitere Informationen erhältst Du vom Anbieter.
Lage
Wittlich - Tor zur Eifel-Mosel-Region. Zentrumsnah in der abwechslungsreichen Landschaft von Eifel und Mosel gelegen, verbindet die Stadt urbanen Komfort mit ländlicher Nähe zur Natur und wirkt wie ein komfortabler Ankerpunkt für Familien, Genießer und Pendler gleichermaßen. Die Umgebung bietet sanfte Hügel, Weinberge und...
Die Wohnung
Wohnungslage
1. Geschoss
Wohnanlage
Energie & Heizung
Warum sehe ich diese Anzeige? – Du siehst diese Anzeige basierend auf Ihrer Navigation auf unserer Website und den Suchkriterien, die du verwendet hast.
Weitere Energiedaten
Heizungsart
Fußbodenheizung, Luft-/Wasser-Wärmepumpe
Details
Objektbeschreibung
Willkommen in Ihrer neuen Traumwohnung in einer modernen Wohnanlage, die in diesem Jahr neu errichtet wird!
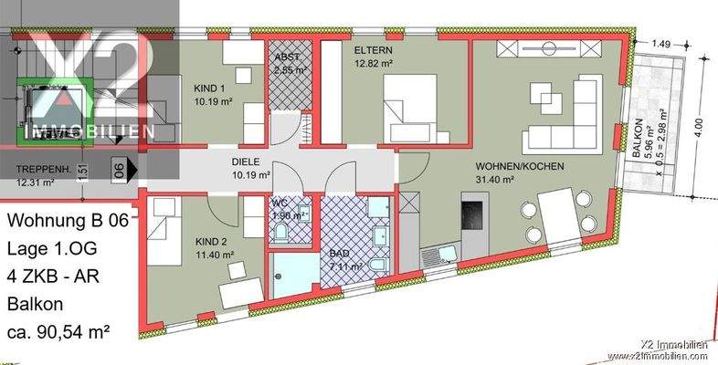
Diese lichtdurchflutete Wohnung im 1. Obergeschoss mit der Nummer 06 bietet Ihnen auf ca. 91 m² Wohnfläche ein zeitgemäßes und komfortables Zuhause, das keine Wünsche offenlässt.
Beim Betreten der...
Ausstattung
Baukörper B | 1. OG | Wohnung Nr. 06
*** ca. 91 m² Wohnfläche
*** Diele
*** Badezimmer
*** Schlafzimmer Eltern
*** 2 Kinderzimmer
*** Gäste-WC
*** Wohn- und Küchenbereich
*** Abstellraum
*** Balkon
*** Stellplatz für zusätzlich 30.000,- €
Weitere Informationen
Sonstiges
Wir stehen Ihnen gerne für weitere Auskünfte unter folgender Rufnummer zur Verfügung:
Büro: 06575-90 25 288
Mobil: 0171-440 54 51
Freundlich grüßt Sie
das X2 Immobilien Team
Stichworte
Anzahl der Schlafzimmer: 3, Anzahl der Badezimmer: 1, Anzahl der separaten WCs: 1, Anzahl...
Anbieter der Immobilie
X2 Immobilien
Auf der Mauer 3, 54518 Binsfeld

Online-ID: 2nzsm5f
Referenznummer: 1062
Finde Angebote wie dieses
Hier geht es zu unserem Impressum, den Allgemeinen Geschäftsbedingungen, den Hinweisen zum Datenschutz und nutzungsbasierter Online-Werbung.