

Claashen Immobilien
Herr Carsten Koßmann
049 ···
Nr. anzeigenPreise & Kosten
Kaution
1.050 €
Warum sehe ich diese Anzeige? – Du siehst diese Anzeige basierend auf Ihrer Navigation auf unserer Website und den Suchkriterien, die du verwendet hast.
Lage
Die Immobilie liegt in zentraler Wohnlage von Norden, nur wenige Minuten vom Marktplatz entfernt. Einkaufsmöglichkeiten, Ärzte, Schulen und weitere Einrichtungen des täglichen Bedarfs sind bequem erreichbar. Eine gute Verkehrsanbindung sowie die Nähe zur Nordseeküste und zum beliebten Norddeich unterstreichen die...
Das Haus
Kategorie
Reihenmittelhaus
Baujahr
1993
Bezug
01.04.2026, evtl. früher
Energie & Heizung
Warum sehe ich diese Anzeige? – Du siehst diese Anzeige basierend auf Ihrer Navigation auf unserer Website und den Suchkriterien, die du verwendet hast.
Energieausweistyp
Verbrauchsausweis
Gebäudetyp
Wohngebäude
Wesentliche Energieträger
Gas
Gültigkeit
17.08.2015 bis 16.08.2025
Effizienzklasse
D
Endenergieverbrauch
113,30 kWh/(m²·a)
Weitere Energiedaten
Energieträger
Gas
Heizungsart
Zentralheizung
Details
Objektbeschreibung
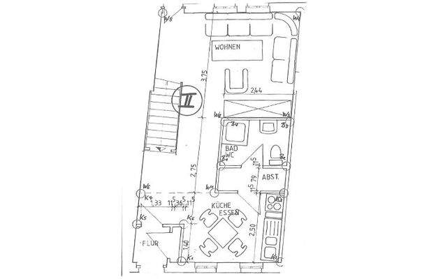
Dieses gepflegte Reihenmittelhaus aus dem Baujahr 1993 liegt in attraktiver Lage unweit des Norder Marktplatzes. Treten Sie ein! Über den Eingangsbereich mit Garderobe gelangen Sie unmittelbar in die großzügig geschnittene Wohnküche, die mit einer charmanten Holzbalkendecke überzeugt.
Auf der rechten Seite befindet...
Ausstattung
- funktionale Einbauküche
- Terrasse mit Gartenanteil
- Schuppen für Gartengeräte
- Bad mit Dusche
- öffentliche PKW-Stellplätze im Umfeld integriert
- Kabelanschluss in den Nebenkosten bereits enthalten
Weitere Informationen
Sonstiges
Alle Angaben sind ohne Gewähr und basieren ausschließlich auf Informationen, die uns von unserem Auftraggeber übermittelt wurden.
Wir übernehmen keine Gewähr für die Vollständigkeit, Richtigkeit und Aktualität dieser Angaben. Zwischenvermietung und Irrtum vorbehalten.
Auf Wunsch stehen wir Ihnen...
Anbieter der Immobilie

Online-ID: 2nzrg5j
Referenznummer: 3832
Finde Angebote wie dieses
Hier geht es zu unserem Impressum, den Allgemeinen Geschäftsbedingungen, den Hinweisen zum Datenschutz und nutzungsbasierter Online-Werbung.