

Charlotte Huhn Immobilien
Frau Charlotte Huhn
076 ···
Nr. anzeigenPreise & Kosten
Provision für Käufer
Käuferprovision: 3,57% inkl. MwSt. inkl. MwSt.
Lage
Das freistehende, seitlich angebaute Einfamilienhaus befindet sich in der Langgasse, einer ruhigen Nebenstraße im idyllischen Weinbauort Kiechlinsbergen, einem Ortsteil der Stadt Endingen am Kaiserstuhl. Die Umgebung ist geprägt von gepflegten Wohnhäusern, Weinbergen und einer intakten Dorfgemeinschaft - ideal für alle, die...
Das Haus
Kategorie
Mehrfamilienhaus
Baujahr
1991
Bezug
nach Absprache!
Energie & Heizung
Warum sehe ich diese Anzeige? – Du siehst diese Anzeige basierend auf Ihrer Navigation auf unserer Website und den Suchkriterien, die du verwendet hast.
Weitere Energiedaten
Energieträger
Solar
Heizungsart
Luft-/Wasser-Wärmepumpe, offener Kamin, Zentralheizung
Details
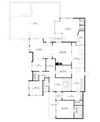
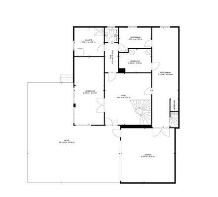
Objektbeschreibung
Gepflegtes Wohnhaus mit moderner Technik, vielseitigem Grundriss und ruhiger Lage!
Dieses gepflegte Einfamilienhaus befindet sich in ruhiger Seitenlage des malerischen Weinbauorts Kiechlinsbergen, einem Ortsteil von Endingen am Kaiserstuhl.
Mit einer Wohnfläche von ca. 300 m² und ca. 130 m² Nutzfläche bietet die...
Ausstattung
- voll unterkellert (massiv), ab Erdgeschoss in Holzständerbauweise
- drei Balkone & gepflegter Garten
- innenliegende Doppelgarage & Carport
- moderne Wärmepumpe 2021
- neue Fenster 2024 verbaut
- Kachelofen mit Strom
- Schwedenofen mit Holz
- Photovoltaikanlage mit Stromspeicher, Solarthermie...
Preisinformation
3 Stellplätze
Weitere Informationen
Sonstiges
Energieausweis in Bearbeitung.
Hinweis zur Besichtigung:
Bitte stellen Sie uns bei Interesse eine schriftliche Anfrage. Nutzen Sie vorab gerne den 360°-Rundgang, um sich einen ersten Eindruck von der Immobilie zu verschaffen.
Grundstücksgröße: Bitte beachten Sie, dass sich eine neue Vermessung...
Anbieter der Immobilie
Charlotte Huhn Immobilien
Sandstraße 4, 79104 Freiburg im Breisgau

Online-ID: 2nzrf5z
Referenznummer: LG5_n
Finde Angebote wie dieses
Hier geht es zu unserem Impressum, den Allgemeinen Geschäftsbedingungen, den Hinweisen zum Datenschutz und nutzungsbasierter Online-Werbung.