
Sparda Immobilien GmbH
Herr Jayadev Struck
004 ···
Nr. anzeigenPreise & Kosten
Provision für Käufer
3,57 % inkl. MwSt. inkl. MwSt.
Lage
Das Objekt befindet sich in einer ruhigen, gepflegten Wohngegend von Bleckede, einer idyllischen Kleinstadt im Landkreis Lüneburg. Die Umgebung zeichnet sich durch eine angenehme Nachbarschaft und eine hohe Lebensqualität aus. Die Anliegerstraße ist verkehrsberuhigt, was besonders Familien und Ruhesuchende...
Das Haus
Kategorie
Einfamilienhaus
Baujahr
2020
Energie & Heizung
Warum sehe ich diese Anzeige? – Du siehst diese Anzeige basierend auf Ihrer Navigation auf unserer Website und den Suchkriterien, die du verwendet hast.
Energieausweistyp
Verbrauchsausweis
Gebäudetyp
Wohngebäude
Baujahr laut Energieausweis
2020
Wesentliche Energieträger
LUFTWP
Gültigkeit
bis 28.05.2035
Effizienzklasse
A+
Endenergieverbrauch
15,50 kWh/(m²·a)
Weitere Energiedaten
Heizungsart
Luft-/Wasser-Wärmepumpe
Details
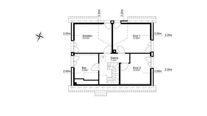
Objektbeschreibung
Willkommen in Ihrem neuen Zuhause:
Dieses hochwertige Passivhaus aus dem Baujahr 2020 bietet auf ca. 192?,00 m² Wohnfläche modernen Wohnkomfort, höchste Energieeffizienz und zahlreiche Extras - ideal für Familien oder anspruchsvolle Paare, die nachhaltig und stilvoll wohnen möchten.
Das großzügige Raumkonzept mit...
Ausstattung
Fenster:
Kunststofffenster mit 3-fach Isolierverglasung
Heizung und Warmwasser:
Luft-Wasser-Wärmepumpe (PV Anlage)
Bäder:
Vollbad mit bodentiefer Dusche im Dachgeschoss
Gäste WC im Erdgeschoss
Bodenbeläge:
Fliesenböden + Vinylböden
Besonderheiten:
PV-Anlage (5,3 kWh) mit...
Weitere Informationen
Stichworte
Garage vorhanden, Stellplatz vorhanden, Nutzfläche: 28,00 m², Anzahl der Schlafzimmer: 5, Anzahl der Badezimmer: 2, Anzahl Terrassen: 1
Sonstiges/Wohnen: Dachboden
Anbieter der Immobilie
Sparda Immobilien GmbH
Beim Strohhause 27, 20097 Hamburg
Online-ID: 2nzrb5s
Referenznummer: JAS_5571
Finde Angebote wie dieses
Hier geht es zu unserem Impressum, den Allgemeinen Geschäftsbedingungen, den Hinweisen zum Datenschutz und nutzungsbasierter Online-Werbung.