

SLS Immobilienpartner GmbH
Frau Tanja Wawrosch
(02 ···
Nr. anzeigenPreise & Kosten
Provision für Käufer
3,57%
Die Provision ist mit Abschluss des Kaufvertrages verdient und fällig.
Lage
Die Wohnung liegt in Dorsten-Rhade, einem ruhigen und grünen Stadtteil im Nordwesten von Dorsten. Am Rand einer gewachsenen Siedlungsstruktur bietet die Umgebung ein angenehmes Wohnumfeld, das von gepflegten Einfamilien- und Mehrfamilienhäusern geprägt ist. Direkt angrenzende Felder und Grünflächen unterstreichen den...
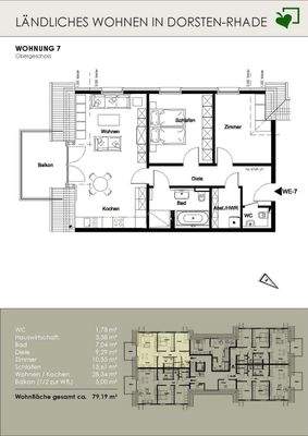
Die Wohnung
Wohnungslage
1. Geschoss
Bezug
Sofort
Wohnanlage
Energie & Heizung
Warum sehe ich diese Anzeige? – Du siehst diese Anzeige basierend auf Ihrer Navigation auf unserer Website und den Suchkriterien, die du verwendet hast.
Energieausweistyp
Verbrauchsausweis
Gebäudetyp
Wohngebäude
Wesentliche Energieträger
Gas
Gültigkeit
15.04.2025 bis 14.04.2035
Effizienzklasse
A
Endenergieverbrauch
46,20 kWh/(m²·a)
Weitere Energiedaten
Energieträger
Gas
Heizungsart
Zentralheizung
Details
Objektbeschreibung
Diese Wohnung in der ersten Etage bietet einen besonderen Blick und viel Licht. Der große Balkon öffnet sich zur Sonnenseite und gibt den Blick weit über die angrenzenden Felder frei. Kein Gebäude versperrt die Aussicht, sodass die Wohnung den ganzen Tag über hell und freundlich wirkt.
Die rund 79?m² Wohnfläche sind...
Preisinformation
1 Stellplatz
Weitere Informationen
Sonstiges
Virtueller Rundgang - https://tour.sls.de/6JHm
Stichworte
Stellplatz vorhanden, Anzahl der Schlafzimmer: 2, Anzahl der Badezimmer: 1, Anzahl Balkone: 1, Bundesland: Nordrhein-Westfalen, 3 Etagen, Distanz zum Flughafen: 66.03, Distanz zum Hauptbahnhof: 1.23, Distanz zur Autobahn: 0.35, Distanz zum...
Anbieter der Immobilie
SLS Immobilienpartner GmbH
Ubierweg 2, 46286 Dorsten

Online-ID: 2nzqy5g
Referenznummer: SLS 2040
Finde Angebote wie dieses
Hier geht es zu unserem Impressum, den Allgemeinen Geschäftsbedingungen, den Hinweisen zum Datenschutz und nutzungsbasierter Online-Werbung.