
Müller Merkle Immobilien GmbH
Frau Maria Sorokin
Kontaktiere den Anbieter schriftlich, es ist keine Telefonnummer hinterlegt.
Preise & Kosten
Kaution
3825
Warum sehe ich diese Anzeige? – Du siehst diese Anzeige basierend auf Ihrer Navigation auf unserer Website und den Suchkriterien, die du verwendet hast.
Lage
Als eigenständiger Stadtteil bietet FRANKLIN künftig eine ebenso eigene Infrastruktur. So liegt das SULLIVAN PARKSIDE nur einen kurzen Spaziergang entfernt vom COLUMBUS-QUARTIER. Dieses bietet ein stetig wachsendes Angebot an Supermärkten, Geschäften und Dienstleistungsbetrieben, Arztpraxen und Apotheken. Schon jetzt lockt...
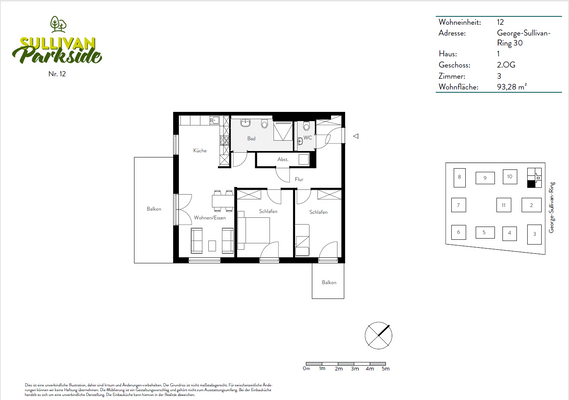
Die Wohnung
Wohnungslage
2. Geschoss
Bezug
sofort
Wohnanlage
Energie & Heizung
Warum sehe ich diese Anzeige? – Du siehst diese Anzeige basierend auf Ihrer Navigation auf unserer Website und den Suchkriterien, die du verwendet hast.
Energieausweistyp
Bedarfsausweis
Gebäudetyp
Wohngebäude
Wesentliche Energieträger
Fernwärme
Gültigkeit
20.06.2021 bis 20.06.2031
Effizienzklasse
A
Endenergiebedarf
48,70 kWh/(m²·a)
Weitere Energiedaten
Energieträger
Fernwärme
Heizungsart
Fußbodenheizung
Details
Objektbeschreibung
Die Fotos der Wohnung zeigen eine Musterwohnung im Projekt. Die beschriebene Wohnung befindet sich im 2. Obergeschoss. Der Wohn- und Essbereich ist gespiegelt im Gegensatz zu den Fotos. (bitte siehe Grundriss).
Eine 3-Zimmer-Wohnung, die zu Ihnen passt! Über den L-förmigen Flur unserer Wohnung erreichen Sie zunächst...
Ausstattung
Alle Besonderheiten auf einen Blick:
. Gegensprechanlagen und Aufzüge
. Jede Wohnung mit Balkon oder (Dach)Terrasse
. Bodentiefe Fenster- und Fenstertüren
. Glattweiß tapezierte Wände
. Fußbodenheizung in der ganzen Wohnung
. Modern ausgestattete Badezimmer
. Echtholzparkett in Fluren und...
Preisinformation
1 Stellplatz, Miete: 90,00 EUR
Weitere Informationen
Sonstiges
Wir bitten Sie Terminanfragen direkt über das Kontaktformular zu senden.
Bei den Bildern handelt es sich um Fotos einer Musterwohnung im Projekt. Ausstattung und Schnitt können abweichen.
HAFTUNGSAUSSCHLUSS:
Diese Anzeige dient nur der ersten Information und stellt kein Vertragsangebot dar. Die...
Anbieter der Immobilie
Müller Merkle Immobilien GmbH
Galileistraße 1, 69115 Heidelberg
Frau Maria Sorokin
Dein Ansprechpartner
Kontaktiere den Anbieter schriftlich, es ist keine Telefonnummer hinterlegt.
Online-ID: 2nzqp5y
Referenznummer: MA-SP-12#EpnLD
Finde Angebote wie dieses
Hier geht es zu unserem Impressum, den Allgemeinen Geschäftsbedingungen, den Hinweisen zum Datenschutz und nutzungsbasierter Online-Werbung.