
Crozilla.com
DIAMOND Real Estate
+38 ···
Nr. anzeigenPreise & Kosten
Provision für Käufer
Bitte beachte, das Angebot kann bei Vertragsabschluss die Zahlung einer Provision beinhalten. Weitere Informationen erhältst Du vom Anbieter.
Die Immobilie
Zu diesem Angebot wurden vom Anbieter keine weiteren Daten hinterlegt. Für weitere Informationen bitte den Anbieter kontaktieren.
Nach Informationen fragenDetails
Objektbeschreibung
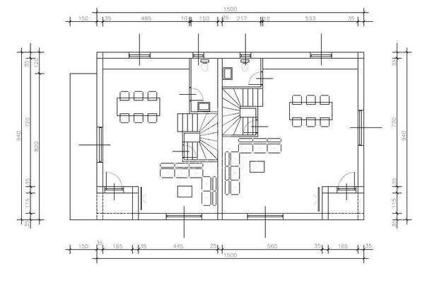
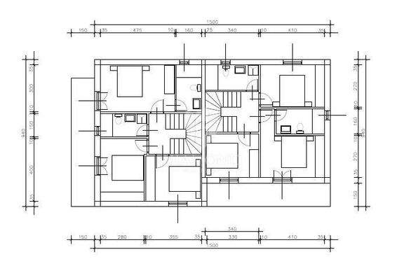
Malinska, Insel Krk - Baugrundstück mit Projekt in ruhiger Lage
In einer ruhigen Gegend von Malinska auf der Insel Krk befindet sich dieses 864 m² große Baugrundstück, das sich ideal für ein Wohnprojekt eignet. Das Grundstück ist eben, verfügt über direkten Zugang von einer asphaltierten Straße, und die Anschlüsse für...
Weitere Informationen
Stichworte
Wohnfläche: 864,00 m², 1 Etagen
Anbieter der Immobilie
Crozilla.com
Nova cesta 60, 10000 ZAGREB
Online-ID: 2nzpr58
Referenznummer: 19243660_0
Finde Angebote wie dieses
Hier geht es zu unserem Impressum, den Allgemeinen Geschäftsbedingungen, den Hinweisen zum Datenschutz und nutzungsbasierter Online-Werbung.