
IMMOcontract Immobilien Vermittlung GmbH
Frau Zuzanna Mazurek, MA
+43 ···
Nr. anzeigenPreise & Kosten
Provision für Käufer
3% des Kaufpreises zzgl. 20% USt.
Lage
Die verkehrsberuhigte Fahrbachgasse liegt in einer charmanten Einbahnstraße mit Übergang zur Begegnungszone und überzeugt durch urbane Erreichbarkeit, die unmittelbare Nähe zur Alten Donau sowie ein gewachsenes Bildungs- und Wohnumfeld mit hoher Lebensqualität.
Alles Wesentliche erreichen Sie bequem zu Fuß:
- 2...
Die Wohnung
Wohnungslage
4. Geschoss
Bezug
sofort
Wohnanlage
Energie & Heizung
Warum sehe ich diese Anzeige? – Du siehst diese Anzeige basierend auf Ihrer Navigation auf unserer Website und den Suchkriterien, die du verwendet hast.
Heizwärmebedarf (HWB)
22,90 kWh/(m²·a)
Gesamtenergieeffizienz (fGEE)
0,71
Weitere Energiedaten
Energieträger
Fernwärme
Haustyp
Niedrigenergiehaus
Heizungsart
Fußbodenheizung
Details
Objektbeschreibung
Bezugsfertiges Wohnen nahe der Alten Donau
Diese Vorsorgewohnung im Projekt BEIM DONAUUFER bietet eine attraktive Möglichkeit, heute schon an morgen zu denken. Investieren Sie in eine zukunftssichere Immobilie in attraktiver Lage und profitieren Sie von unserem sorgenfreien Rundum-Service - von der...
Weitere Informationen
Stichworte
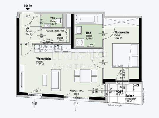
Ost-Balkon/Terrasse, Fahrradraum, Nutzfläche: 48,25 m², Anzahl der Badezimmer: 1, Anzahl der separaten WCs: 1, Anzahl Balkone: 1, Balkon-Terrassen-Fläche: 3,65 m², Kellerfläche: 1,38 m², Bundesland: Wien, 7 Etagen
Sonstiges/Wohnen: seniorengerechtes Wohnen
Anbieter der Immobilie
IMMOcontract Immobilien Vermittlung GmbH
Schnirchgasse 17, 1030 WIEN
Online-ID: 2nzpb5q
Referenznummer: OBGC20260227202958951a7f1146b5b
Finde Angebote wie dieses
Günstige Immobilienfinanzierung einfach online berechnen
Persönliches Angebot berechnenWarum sehe ich diese Werbung? – Du siehst diese Werbung basierend auf Deiner Navigation auf unserer Website und der von Dir verwendeten Suchkriterien.
Diese Werbung wird bezahlt von durchblicker
Werbung melden
Hier geht es zu unserem Impressum, den Allgemeinen Geschäftsbedingungen, den Hinweisen zum Datenschutz und nutzungsbasierter Online-Werbung.