

Immobilien Gallery GmbH
Herr Yashar Chinahkash
023 ···
Nr. anzeigenPreise & Kosten
Provision für Mieter
provisionsfrei
Warum sehe ich diese Anzeige? – Du siehst diese Anzeige basierend auf Ihrer Navigation auf unserer Website und den Suchkriterien, die du verwendet hast.
Lage
Die Flächen befinden sich in zentraler Lage in der Innenstadt von Erkelenz.
Büro-/Praxisfläche
Kategorie
Bürofläche
Baujahr
1997
Bezug
nach Vereinbarung
Energie & Heizung
Warum sehe ich diese Anzeige? – Du siehst diese Anzeige basierend auf Ihrer Navigation auf unserer Website und den Suchkriterien, die du verwendet hast.
Wärme
Energieausweistyp
Bedarfsausweis
Gebäudetyp
Nicht-Wohngebäude
Wesentliche Energieträger
Fernwärme
Gültigkeit
24.10.2018 bis 23.10.2028
Endenergiebedarf (Wärme)
128,90 kWh/(m²·a)
Weitere Energiedaten
Energieträger
Fernwärme
Details
Objektbeschreibung
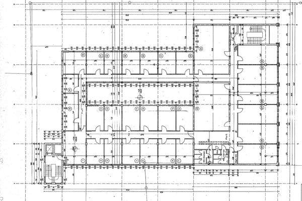
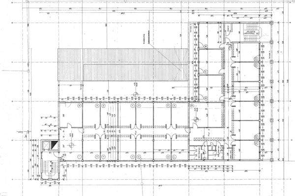
Die angebotenen Büroflächen befinden sich im 2. und 3. Obergeschoss eines gepflegten Gewerbekomplexes aus dem Baujahr 1997 in attraktiver Lage.
Die Gesamtmietfläche beträgt ca. 1.636 m² und verteilt sich auf insgesamt 54 Büroräume. Durch die Aufteilung über zwei Etagen bieten die Flächen eine flexible...
Ausstattung
? Über 2 Etagen
? Baujahr 1997
? Gesamtmietfläche ca. 1.636 m²
? 54 Büroräume
? Flexible Raumstruktur
? Geeignet für Verwaltungs-, Dienstleistungs- oder Bürostandorte
? Teil eines größeren Gewerbekomplexes
? Gepflegter Gebäudezustand
? Attraktive Lage
Anbieter der Immobilie
Immobilien Gallery GmbH
Brückstraße 48, 44787 Bochum

Online-ID: 2nzgn5u
Referenznummer: 1004075#vubm1
Finde Angebote wie dieses
Hier geht es zu unserem Impressum, den Allgemeinen Geschäftsbedingungen, den Hinweisen zum Datenschutz und nutzungsbasierter Online-Werbung.