

PIPPING Immobilien GmbH & Co. KG
Herr Ben Bode
+49 ···
Nr. anzeigenPreise & Kosten
Provision für Käufer
6,25 % inkl. USt.
Lage
Die Hermann-Distel-Straße zählt zu einer der besten und zentralsten Wohnlagen des Bergedorfer Villengebietes. Familien bietet das Bergedorfer Villenviertel seit Generationen eine Oase, die durch ihre einzigartige, großbürgerliche Architektur höchsten Wohnansprüchen gerecht wird.
Hier zeugen prunkvolle Villen sowie...
Das Haus
Kategorie
Einfamilienhaus
Baujahr
1905
Energie & Heizung
Warum sehe ich diese Anzeige? – Du siehst diese Anzeige basierend auf Ihrer Navigation auf unserer Website und den Suchkriterien, die du verwendet hast.
Energieausweistyp
Verbrauchsausweis
Gebäudetyp
Wohngebäude
Baujahr laut Energieausweis
2021
Wesentliche Energieträger
Gas
Gültigkeit
bis 07.11.2034
Effizienzklasse
H
Endenergieverbrauch
255,00 kWh/(m²·a)
Weitere Energiedaten
Energieträger
Gas
Details
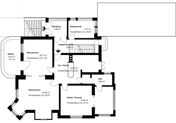
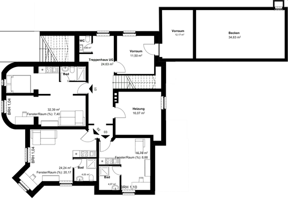
Objektbeschreibung
Bei dieser Immobilie handelt es sich um ein gepflegtes Mehrfamilienhaus, welches im Jahre 1905 in massiver Bauweise errichtet wurde.
Die Beheizung und die Warmwasserversorgung erfolgen über eine Gaszentralheizung aus dem Jahre 2021.
Die Gesamtwohn- und Nutzfläche beträgt ca. 341 m², welche sich auf drei gut...
Preisinformation
1 Carportplatz
Anbieter der Immobilie
PIPPING Immobilien GmbH & Co. KG
Bahnhofstr. 12, 21465 Reinbek

Online-ID: 2nzfx5s
Referenznummer: BEB-2471011583v
Finde Angebote wie dieses
Hier geht es zu unserem Impressum, den Allgemeinen Geschäftsbedingungen, den Hinweisen zum Datenschutz und nutzungsbasierter Online-Werbung.