
Hoffmann & Partner Immobilien
Herr Andreas Hoffmann
+49 ···
Nr. anzeigenPreise & Kosten
Provision für Käufer
Für den Käufer ist der Erwerb provisionsfrei
Lage
Die angebotene Erdgeschosswohnung befindet sich im malerischen Schrobenhausen im Ortsteil Mühlried, einer charmanten Stadt im Herzen Bayerns. Diese Region ist bekannt für ihre idyllischen Landschaften und ihre reiche Geschichte. Die Wohnung liegt in einem ruhigen und familienfreundlichen Wohnviertel, das von einer einladenden...
Die Wohnung
Wohnungslage
Erdgeschoss
Wohnanlage
Energie & Heizung
Warum sehe ich diese Anzeige? – Du siehst diese Anzeige basierend auf Ihrer Navigation auf unserer Website und den Suchkriterien, die du verwendet hast.
Weitere Energiedaten
Heizungsart
Luft-/Wasser-Wärmepumpe
Details
Objektbeschreibung
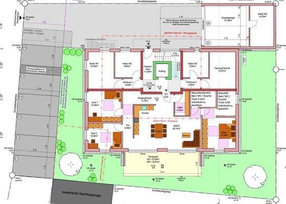
Neubauprojekt in Mühlried! Willkommen in Ihrem zukünftigen Zuhause in einer der begehrtesten Wohnlagen Mühlrieds. Hier entsteht in ruhiger und dennoch zentraler Lage eine Wohnanlage mit 4 Einheiten in Ziegelbauweise.
Die hier angebotene exquisit gestaltete Erdgeschosswohnung in massiver Bauweise bietet Ihnen nicht nur...
Ausstattung
Ausstattungsmerkmale:
- KFW 55 - Möglichkeit für Förderdarlehen (Energieausweis in Vorbereitung)
- Gestalten Sie selbst mit! -Grundrisse individuell anpassbar
- Möglichkeit zum vergünstigten Strombezug dank PV Anlage inkl. Batteriespeicher
- Kostengünstiger Betrieb der Wärmepumpe
- Grosszügige Terrasse /...
Weitere Informationen
Sonstiges
Ist dieses Objekt interessant für Sie?
Vereinbaren Sie Ihren persönlichen Besichtigungstermin und rufen Sie uns gerne einfach an.
Für die Zusendung des Exposés / weitere Informationen zum Objekt sowie einen Terminwunsch bitten wir Sie Ihre Anfrage zur ersten Kontaktaufnahme über unser...
Anbieter der Immobilie
Hoffmann & Partner Immobilien
Lenbachstraße 23, 86529 Schrobenhausen
Online-ID: 2nzfw5s
Referenznummer: 2025-294 (W1)
Finde Angebote wie dieses
Hier geht es zu unserem Impressum, den Allgemeinen Geschäftsbedingungen, den Hinweisen zum Datenschutz und nutzungsbasierter Online-Werbung.