
McMakler GmbH
Ihr McMakler Team
080 ···
Nr. anzeigenPreise & Kosten
Provision für Käufer
Die Provision i.H.v. 3,57 % inkl. MwSt. ist mit Kaufvertragsbeurkundung fällig, sofern der Verkaufspreis über 83.000,00 € liegt.
Liegt der Verkaufspreis dagegen bei/unter 83. Weitere Informationen siehe Provisionshinweis.
Lage
Lage: Attraktive Lage in Dörverden, fußläufig zum Bahnhof
Bildung und Betreuung: Optimal für Familien: Schule und Kindergarten in max. 3 km Entfernung
Nahversorgung: Anlaufstellen wie Supermarkt, Apotheke, Postfiliale und Bankfiliale in einem Radius von max. 6 km
Anbindung: Nächste Bushaltestelle, nächster Bahnhof...
Das Haus
Kategorie
Einfamilienhaus
Baujahr
1971
Bezug
ab sofort
Energie & Heizung
Warum sehe ich diese Anzeige? – Du siehst diese Anzeige basierend auf Ihrer Navigation auf unserer Website und den Suchkriterien, die du verwendet hast.
Energieausweistyp
Bedarfsausweis
Gebäudetyp
Wohngebäude
Baujahr laut Energieausweis
1971
Wesentliche Energieträger
Gas
Effizienzklasse
H
Endenergiebedarf
268,10 kWh/(m²·a)
Weitere Energiedaten
Energieträger
Gas
Heizungsart
Zentralheizung
Details
Objektbeschreibung
Objektnr: 1067774
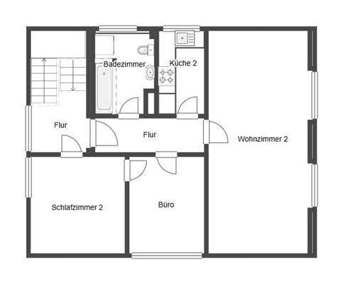
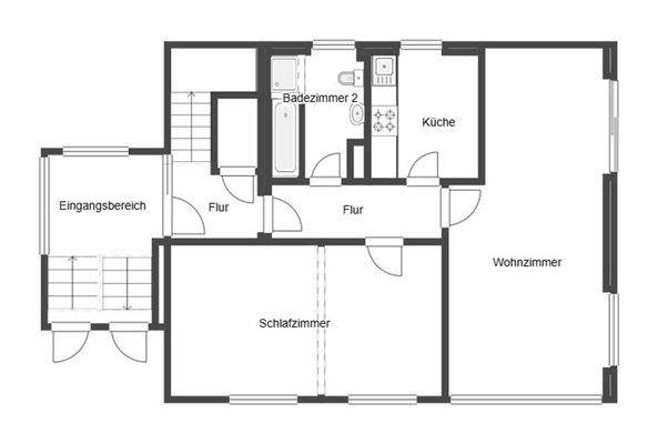
Eine großzügige Raumstruktur ermöglicht flexible Nutzungsmöglichkeiten und bietet so ideale Voraussetzungen für Mehrgenerationenwohnen oder die Aufteilung in zwei Wohneinheiten mit Vermietungspotenzial.
Das 1971 erbaute Haus befindet sich in einem gepflegten Zustand, mit Modernisierungen im Jahre...
Ausstattung
+ Einfamilienhaus mit Einliegerwohnung
+ Teilmodernisiert (Dach, Fenster, Heizung)
+ Garage, Nebengebäude (Werkstatt)
+ Voll unterkellert
Weitere Informationen
Provisionshinweis
Die Provision i.H.v. 3,57 % inkl. MwSt. ist mit Kaufvertragsbeurkundung fällig, sofern der Verkaufspreis über 83.000,00 € liegt.
Liegt der Verkaufspreis dagegen bei/unter 83.000,00 €, ist die fest vereinbarte Mindestprovision i.H.v. mind. 5.950,00 € inkl. MwSt. mit Kaufvertragsbeurkundung fällig...
Anbieter der Immobilie
McMakler GmbH
Am Postbahnhof 17, 10243 Berlin
Online-ID: 2nzfd5v
Referenznummer: 2b5b79e9dc
Finde Angebote wie dieses
Hier geht es zu unserem Impressum, den Allgemeinen Geschäftsbedingungen, den Hinweisen zum Datenschutz und nutzungsbasierter Online-Werbung.