
Arte Wohnbau GmbH
Herr Ralf Langner
070 ···
Nr. anzeigenPreise & Kosten
Provision für Käufer
provisionsfrei
Lage
Charlottenburg - gelegen im westlichen Teil Berlins, vereint Geschichte, Kultur, Shopping und Kreativität in einem eleganten, gut angebundenen Stadtteil.
Traditionelle Handwerksbetriebe finden sich hier ebenso wie junge Start-ups und die TU-Berlin. Nahe gelegene Erholungsorte wie das Spree-Ufer, der Schlosspark oder...
Die Wohnung
Wohnungslage
1. Geschoss
Bezug
Sommer 2027
Wohnanlage
Energie & Heizung
Warum sehe ich diese Anzeige? – Du siehst diese Anzeige basierend auf Ihrer Navigation auf unserer Website und den Suchkriterien, die du verwendet hast.
Weitere Energiedaten
Heizungsart
Fußbodenheizung, Luft-/Wasser-Wärmepumpe
Details
Objektbeschreibung
4-Zimmer-Wohnung im 1. Obergeschoss mit Balkon.
In der Arcostr. 7 a entsteht ein Mehrfamilienhaus mit 8 Eigentumswohnungen mit 2, 3, 4 und 5 Zimmern - ideal für Singles, Paare und Familien.
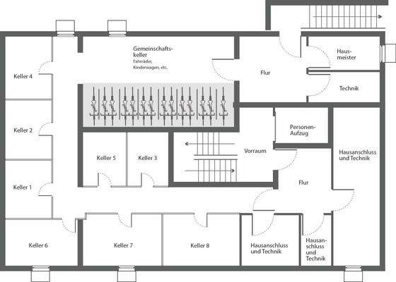
Zu jeder Wohnung gehört ein eigener Kellerraum und mit dem Aufzug sind alle Etagen bequem erreichbar. Für Fahrräder oder...
Ausstattung
Alle Wohnungen verfügen über eine Terrasse oder Balkon. Die Beheizung erfolgt über eine zentrale Fußbodenheizung mit zentraler Warmwasserversorgung.
Moderne Fliesen, Parkettböden und Sanitärgegenstände sind gemäß Baubeschreibung im Preis enthalten und können im Rahmen eines Mustersortiments ausgesucht werden...
Weitere Informationen
Sonstiges
Alle Fragen rund um den Wohnungskauf wird Ihnen die Firma Wohnquadrat Berlin GmbH - welche wir mit dem Vertrieb beauftragt haben - schnell und zuverläsig beantworten. Ihre Anfrage leiten wir zur Konaktaufnahme gern weiter.
Energiepass
Energieausweis wird bei Besichtigung...
Anbieter der Immobilie
Arte Wohnbau GmbH
Benzstraße 21, 71101 Schönaich
Online-ID: 2nzdt5r
Referenznummer: 8004-04
Finde Angebote wie dieses
Hier geht es zu unserem Impressum, den Allgemeinen Geschäftsbedingungen, den Hinweisen zum Datenschutz und nutzungsbasierter Online-Werbung.