
Immobilien Kufleitner
Frau Katalin Kufleitner
+49 ···
Nr. anzeigenPreise & Kosten
Provision für Käufer
2% inkl. MwSt.
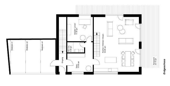
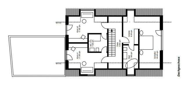
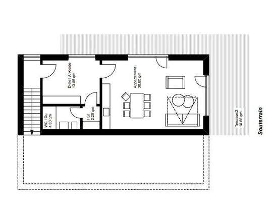
Das Grundstück
Details
Objektbeschreibung
Dieses Grundstück vereint eine seltene Kombination aus Lage, Aussicht und perfekter Vorbereitung. Der unverbaubare Blick ins Grüne schafft eine Atmosphäre, die man nur selten findet - ein Ort, an dem Ruhe, Natur und Wohnqualität dauerhaft gesichert sind.
Besonders attraktiv: Alle wesentlichen Unterlagen für Ihr...
Anbieter der Immobilie
Immobilien Kufleitner
Wanderweg 28, 86163 Augsburg
Online-ID: 2nzaj5t
Referenznummer: 32#Fpu22
Finde Angebote wie dieses
Hier geht es zu unserem Impressum, den Allgemeinen Geschäftsbedingungen, den Hinweisen zum Datenschutz und nutzungsbasierter Online-Werbung.