
etc.pepe Plan GmbH
015 ···
Nr. anzeigenPreise & Kosten
Provision für Käufer
Käuferprovision
beträgt 3,57 % (inkl.
MwSt.) des
beurkundeten
Kaufpreises
Lage
Die Immobilie befindet sich im Ortsteil Agelsberg der Gemeinde Reichertshofen im Landkreis Pfaffenhofen an der Ilm.
Die Lage bietet eine ideale Kombination aus ruhigem Wohnen und schneller Anbindung an wichtige Wirtschaftsstandorte der Region. Über die nahegelegene A9 sowie die Bundesstraße B300 sind sowohl Ingolstadt...
Das Haus
Kategorie
Doppelhaushälfte
Baujahr
2016
Bezug
nach Absprache
Energie & Heizung
Warum sehe ich diese Anzeige? – Du siehst diese Anzeige basierend auf Ihrer Navigation auf unserer Website und den Suchkriterien, die du verwendet hast.
Weitere Energiedaten
Heizungsart
Fußbodenheizung, offener Kamin, Zentralheizung
Details
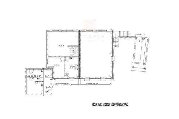
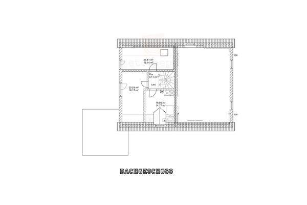
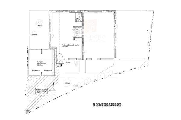
Objektbeschreibung
Diese hochwertige Doppelhaushälfte in Reichertshofen / Agelsberg verbindet modernes Wohnen, energieeffiziente Technik und eine hervorragende Anbindung in die Metropolregion Ingolstadt - München.
Das im Jahr 2016 massiv errichtete Haus präsentiert sich in neuwertigem Zustand und überzeugt mit einem durchdachten...
Ausstattung
Die Immobilie überzeugt durch eine hochwertige und umfangreiche Ausstattung:
Energie & Technik
Luft-Wasser-Wärmepumpe
Fußbodenheizung
15 kWp Photovoltaikanlage
39 kWh Energiespeicher (E3/DC)
Energieeffizienzklasse A+
zentrale Lüftungsanlage
großzügiger Wohn-, Ess- und Kochbereich
Kaminofen...
Preisinformation
2 Stellplätze
2 Garagenstellplätze
Weitere Informationen
Sonstiges
Energieausweis liegt vor und wird bei der Besichtigung ausgehändigt
Sofort verfügbar - eine zeitnahe Übernahme ist möglich
Eine individuelle Finanzierungsberatung kann gerne über unser Netzwerk vermittelt werden
Besichtigungen sind nach individueller Terminvereinbarung...
Anbieter der Immobilie
Online-ID: 2nzah5t
Referenznummer: 162
Finde Angebote wie dieses
Hier geht es zu unserem Impressum, den Allgemeinen Geschäftsbedingungen, den Hinweisen zum Datenschutz und nutzungsbasierter Online-Werbung.