
Raiffeisenbank Ems-Vechte eG
Herr Bernd Sieve
Kontaktiere den Anbieter schriftlich, es ist keine Telefonnummer hinterlegt.
Preise & Kosten
Provision für Käufer
2,975% inkl. MwSt.
Provisionsteilung
Lage
Spahnharrenstätte (PLZ 49751) liegt im nördlichen Landkreis Emsland in Niedersachsen und ist von einer ruhigen, landwirtschaftlich geprägten Landschaft umgeben. Der Ort mit etwa 1.600 Einwohnern, befindet sich zwischen den Gemeinden Sögel, Werlte und Lorup und gehört zur Samtgemeinde Sögel. Über die nahegelegenen Landes- und...
Das Haus
Kategorie
Einfamilienhaus
Baujahr
2003
Energie & Heizung
Warum sehe ich diese Anzeige? – Du siehst diese Anzeige basierend auf Ihrer Navigation auf unserer Website und den Suchkriterien, die du verwendet hast.
Energieausweistyp
Verbrauchsausweis
Gebäudetyp
Wohngebäude
Wesentliche Energieträger
Gas
Gültigkeit
14.06.2022 bis 14.06.2032
Effizienzklasse
C
Endenergieverbrauch
95,50 kWh/(m²·a)
Weitere Energiedaten
Haustyp
Massivhaus
Energieträger
Gas
Details
Objektbeschreibung
Dieses gepflegte Einfamilienhaus aus dem Baujahr 2003 vereint zeitgemäßen Wohnkomfort mit einer durchdachten Raumaufteilung und moderner technischer Ausstattung. Auf einer Wohnfläche von ca. 144 m², eingebettet in ein großzügiges Grundstück von ca. 791 m², bietet die Immobilie ideale Voraussetzungen für Familien mit dem...
Ausstattung
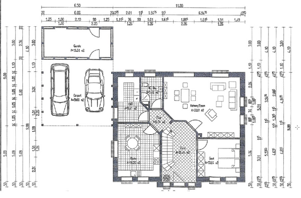
Erdgeschoss:
Küche: ca. 18,20 qm
Wohnen/Essen: ca. 33,61 qm
Mehrzweckzimmer: ca. 13,64 qm
Gäste-WC: ca. 5,42 qm
HWR: ca. 9,41 qm
Flur: ca. 2,74 qm
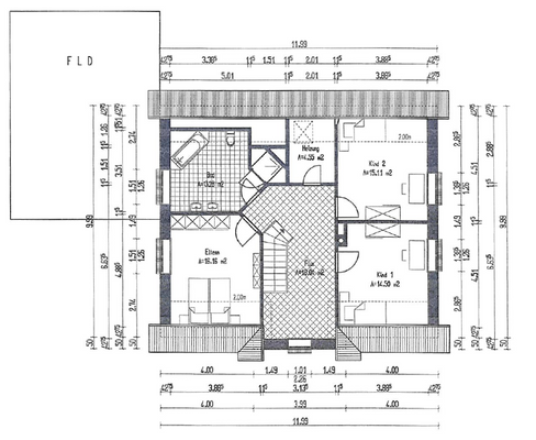
Dachgeschoss:
Schlafen 1.: ca. 16,16 qm
Schlafen 2.: ca. 15,11 qm
Schlafen 3.: ca. 14,50 qm
Badezimmer: ca. 13,28 qm
Heizungsraum: ca. 4,55...
Preisinformation
2 Stellplätze
Weitere Informationen
Sonstiges
Weitere Informationen erhalten Sie gerne auf Anfrage.
Die in diesem Exposé enthaltenen Angaben beruhen auf Informationen des Eigentümers und dienen ausschließlich der unverbindlichen Vorabinformation. Für die Richtigkeit und Vollständigkeit wird keine Haftung übernommen. Irrtum und Zwischenverkauf...
Anbieter der Immobilie
Raiffeisenbank Ems-Vechte eG
Sögeler Str. 2 , 49777 Klein Berßen
Herr Bernd Sieve
Dein Ansprechpartner
Kontaktiere den Anbieter schriftlich, es ist keine Telefonnummer hinterlegt.
Online-ID: 2nz9w5j
Referenznummer: 228#PTgVS
Finde Angebote wie dieses
Hier geht es zu unserem Impressum, den Allgemeinen Geschäftsbedingungen, den Hinweisen zum Datenschutz und nutzungsbasierter Online-Werbung.