
Wohnungsbaugenossenschaft Otto von Guericke eG
Wohnbar der WBG Otto von Guericke eG
Kontaktiere den Anbieter schriftlich, es ist keine Telefonnummer hinterlegt.
Preise & Kosten
nicht in Warmmiete enthalten
Kaution
960,00
Warum sehe ich diese Anzeige? – Du siehst diese Anzeige basierend auf Ihrer Navigation auf unserer Website und den Suchkriterien, die du verwendet hast.
Lage
Dank zahlreicher grüner Innenhöfe und des Flora-Park-Gartens ist Neu Olvenstedt eines der grünsten Viertel aller Neubaugebiete. Das Angebot an Kindertagesstätten, Schulen, Jugend- und Seniorentreffs, Spielplätzen sowie eine Vielzahl an Einkaufsmöglichkeiten sucht seinesgleichen. Es bestehen sehr gute Anbindungen an das...
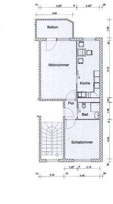
Die Wohnung
Wohnungslage
4. Geschoss
Bezug
sofort
Wohnanlage
Energie & Heizung
Warum sehe ich diese Anzeige? – Du siehst diese Anzeige basierend auf Ihrer Navigation auf unserer Website und den Suchkriterien, die du verwendet hast.
Energieausweistyp
Verbrauchsausweis
Gebäudetyp
Wohngebäude
Baujahr laut Energieausweis
1985
Wesentliche Energieträger
Fernwärme
Effizienzklasse
A
Endenergieverbrauch
47,70 kWh/(m²·a)
Weitere Energiedaten
Energieträger
Fernwärme
Heizungsart
Zentralheizung
Details
Objektbeschreibung
Objektreferenz: 1/1011/2/16
Das Objekt ist saniert, seniorengerecht und barrierearm gestaltet und wird durch die Humanas betreut. Parkplätze können nach Verfügbarkeit gemietet werden.
Ausstattung
Die Wohnung wird umfassend saniert und ist voraussichtlich zum 01.05.2026 bezugsfertig für ihren neuen Lieblingsmieter.
Auf folgende Ausstattung können Sie sich freuen:
- Bad mit Dusche
- bereits integrierte LED Einbaustrahler im Flur und Badezimmer
- moderne Fliesen im Badezimmer und für den Fliesenspiegel in...
Weitere Informationen
Sonstiges
Diese Wohnung kann nur im Zusammenhang mit dem Abschluss eines Servicevertrages bei der Humanas angemietet werden. Der monatliche Beitrag beträgt 50,00 € für einen Einzelpersonenhaushalt und 60,00 € für einen Haushalt mit zwei Personen.
Wichtiger Hinweis: Unsere Mietverträge beinhalten einen...
Dokumente
Anbieter der Immobilie
Wohnungsbaugenossenschaft Otto von Guericke eG
Scharnhorstring 8/9, 39130 Magdeburg
Wohnbar der WBG Otto von Guericke eG
Dein Ansprechpartner
Kontaktiere den Anbieter schriftlich, es ist keine Telefonnummer hinterlegt.
Online-ID: 2nz9c5e
Referenznummer: 1/1011/2/16-OSNjIU
Finde Angebote wie dieses
Hier geht es zu unserem Impressum, den Allgemeinen Geschäftsbedingungen, den Hinweisen zum Datenschutz und nutzungsbasierter Online-Werbung.