
PR - Immobilien Inh. Paunovic Radisa
Herr Radisa Paunovic
066 ···
Nr. anzeigenPreise & Kosten
Provision für Käufer
3% des Kaufpreises zzgl. 20% USt.
Lage
Kvarner Bucht / Opatija / Die Region Matulji-Rukavac (Postleitzahl: 51211) ist bei Eigenheimbauer*innen, aber auch bei ausländischen Investor*innen beliebt - Nähe zu Opatija/Kvarner und der guten Infrastruktur. Die begehrte Lage zwischen Naturschutzgebiet und touristisch hochwertiger Küstenregion bietet zudem ideale...
Das Grundstück
Details
Objektbeschreibung
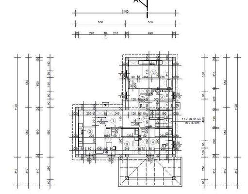
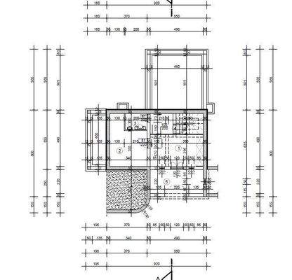
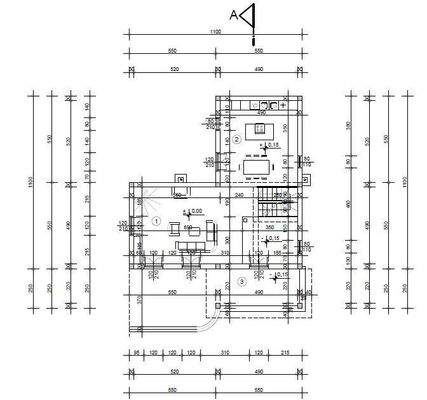
Zum Verkauf gelangt Baugrundstück in bester Lage von Matulji-Rukavac (Opatija) mit sofortiger Baugenehmigung und Meerblick!
Das Grundstück umfasst 527 m² und bietet durch seine Südorientierung, den offenen Meerblick und die vollständige Erschließung ein ideales Fundament für die Errichtung eines...
Weitere Informationen
Sonstiges
WICHTIGE HINWEISE:
Dieses Objekt wird Ihnen unverbindlich und freibleibend angeboten. Wir weisen darauf hin, dass sämtliche Daten im vorliegenden Angebot sowie die von unserem Büro an Sie weitergegebenen Auskünfte, vom Eigentümer der Immobilie zur Verfügung gestellt wurden. Ebenso sind Informationen von...
Anbieter der Immobilie
Online-ID: 2nz995h
Referenznummer: OBGC20260212130622283c2e837301d
Finde Angebote wie dieses
Hier geht es zu unserem Impressum, den Allgemeinen Geschäftsbedingungen, den Hinweisen zum Datenschutz und nutzungsbasierter Online-Werbung.