

Wehrmann Immobilien GmbH
Herr Alexander Wehrmann
022 ···
Nr. anzeigenPreise & Kosten
Provision für Käufer
3,57% (inkl. MwSt.)
Lage
Die charmante Eigentumswohnung befindet sich in ruhiger und attraktiver Wohnlage im beliebten Kölner Stadtteil Dünnwald. Die Umgebung ist geprägt von einer angenehmen Mischung aus gewachsener Wohnbebauung, viel Grün und einer sehr guten Infrastruktur, die sowohl Ruhe als auch Urbanität vereint.
Buslinien sind fußläufig...
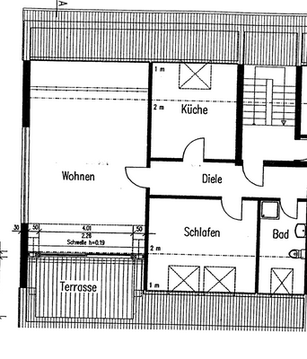
Die Wohnung
Wohnungslage
2. Geschoss
Bezug
sofort
Wohnanlage
Energie & Heizung
Warum sehe ich diese Anzeige? – Du siehst diese Anzeige basierend auf Ihrer Navigation auf unserer Website und den Suchkriterien, die du verwendet hast.
Energieausweistyp
Verbrauchsausweis
Gebäudetyp
Wohngebäude
Wesentliche Energieträger
Gas
Gültigkeit
28.01.2020 bis 27.01.2030
Effizienzklasse
E
Endenergieverbrauch
141,28 kWh/(m²·a)
Weitere Energiedaten
Energieträger
Gas
Heizungsart
Zentralheizung
Details
Objektbeschreibung
Die helle 2-Zimmer-Wohnung befindet sich im 2. Obergeschoss eines gepflegten Mehrfamilienhauses mit insgesamt sechs Parteien. Die Zimmer sind großzügig angelegt und der schöne Parkettboden verleiht den Räumen eine warme und einladende Atmosphäre. Das Tageslichtbad sorgt dank Fenster ein angenehmes Wohngefühl. Zur Wohnung...
Preisinformation
1 Stellplatz, Kaufpreis: 10.000,00 EUR
Weitere Informationen
Sonstiges
Für ein detailliertes Exposé nutzen Sie bitte die Kontaktfunktion.
Auf diese Weise können wir sicherstellen, dass der zuständige Immobilienbetreuer Ihre Anfrage schnellstmöglich bearbeitet.
## WARUM MIT WEHRMANN IMMOBILIEN VERKAUFEN? ##
Unser Service für Immobilieneigentümer...
Anbieter der Immobilie
Wehrmann Immobilien GmbH
Rudolfplatz 3, 50674 Köln

Online-ID: 2nz8h5m
Referenznummer: 2970
Finde Angebote wie dieses
Hier geht es zu unserem Impressum, den Allgemeinen Geschäftsbedingungen, den Hinweisen zum Datenschutz und nutzungsbasierter Online-Werbung.