

VR-Bank Donau-Mindel eG
Herr Gerhard Saur
090 ···
Nr. anzeigenPreise & Kosten
Warum sehe ich diese Anzeige? – Du siehst diese Anzeige basierend auf Ihrer Navigation auf unserer Website und den Suchkriterien, die du verwendet hast.
Lage
Das Reiheneckhaus in 89407 Dillingen an der Donau befindet sich in einem ruhigen, überwiegend wohngeprägten Bereich der Stadt und zeichnet sich durch eine angenehme, verkehrsberuhigte Lage aus. In unmittelbarer Nähe befinden sich verschiedene soziale Einrichtungen. Das Umfeld ist geprägt von einer guten städtischen...
Das Haus
Kategorie
Reihenmittelhaus
Baujahr
1981
Bezug
sofort
Energie & Heizung
Warum sehe ich diese Anzeige? – Du siehst diese Anzeige basierend auf Ihrer Navigation auf unserer Website und den Suchkriterien, die du verwendet hast.
Energieausweistyp
Bedarfsausweis
Gebäudetyp
Wohngebäude
Baujahr laut Energieausweis
1981
Wesentliche Energieträger
Elektroenergie
Gültigkeit
21.02.2025 bis 21.02.2035
Effizienzklasse
F
Endenergiebedarf
173,30 kWh/(m²·a)
Weitere Energiedaten
Haustyp
Massivhaus
Energieträger
Elektro
Heizungsart
Zentralheizung
Details
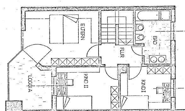
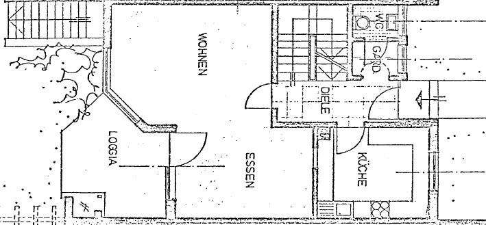
Objektbeschreibung
Dieses gepflegte Reihenmittelhaus bietet ein ideales Zuhause für Familien, die Wert auf Raum, Komfort und ein angenehmes Wohnumfeld legen.
Im Erdgeschoss empfängt Sie ein großzügiges Wohn- und Esszimmer mit direktem Zugang zum Wintergarten, der ganzjährig zusätzlichen Wohnkomfort bietet. Von hier aus gelangen Sie in...
Ausstattung
Wir weisen ausdrücklich daraufhin, dass der Energieausweis noch auf der alten Heizanlage mit Wärmeerzeuger Strom ausgestellt ist. Die neue Gas Heizanlage wurde Ende 2025 eingebaut.
Preisinformation
Nettokaltmiete: 1.400,00 EUR
Weitere Informationen
Sonstiges
Alle Angaben in den Exposés sind ohne Gewähr und basieren ausschließlich auf Informationen, die uns von unserem jeweiligen Auftraggeber übermittelt wurden.
Wir übernehmen keine Gewähr für die Vollständigkeit, Richtigkeit und Aktualität dieser Angaben.
Stichworte
Garage vorhanden, Anzahl der...
Dokumente
Anbieter der Immobilie
VR-Bank Donau-Mindel eG
Kapuzinerstraße 25, 89407 Dillingen a. d. Donau

Online-ID: 2nz7w5j
Referenznummer: GS-2265
Finde Angebote wie dieses
Hier geht es zu unserem Impressum, den Allgemeinen Geschäftsbedingungen, den Hinweisen zum Datenschutz und nutzungsbasierter Online-Werbung.