
Schwabenhaus GmbH & Co. KG SchwabenhausWaldshutTiengen Silvia Busch
Peter Busch
+49 ···
Nr. anzeigenPreise & Kosten
Provision für Käufer
provisionsfrei
Lage
Herrlich gelegenes Grundstück mit Rheinblick.
(Bitte beachten Sie Kauf und Baunebenkosten sind im Preis nicht enthalten.
Auf dem Grundstück befindet sich ein Altbestand, der aufgrund seines Zustands abgerissen werden sollte. Die geschätzten Abrisskosten liegen bei 30.000 bis 40.000 Euro
Dies ist im...
Das Haus
Kategorie
Einfamilienhaus
Energie & Heizung
Warum sehe ich diese Anzeige? – Du siehst diese Anzeige basierend auf Ihrer Navigation auf unserer Website und den Suchkriterien, die du verwendet hast.
Weitere Energiedaten
Heizungsart
Fußbodenheizung
Details
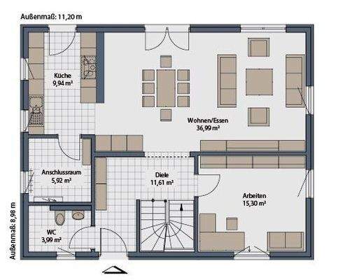
Objektbeschreibung
Herzlich willkommen in Ihrem neuen Zuhause - Raum für Familie, Herz und Leben
Dieses großzügig geplante Schwabenhaus wurde mit Blick auf Familien und gemeinschaftliches Wohnen konzipiert. Es bietet nicht nur ausreichend Platz für Ihre Lieben, sondern auch eine warme, einladende Atmosphäre, in der man sich sofort zu...
Ausstattung
.Natürliche Materialien: Hochwertige, gesunde und natürliche Baustoffe schaffen eine warme und einladende Atmosphäre.
.Lichtdurchflutete Räume: Große Fensterflächen sorgen für eine optimale Nutzung von natürlichem Licht und schaffen eine offene, luftige Umgebung.
.Durchdachte Raumgestaltung: Die klare und funktionale...
Weitere Informationen
Sonstiges
Das Haus ist projektiert inkl. Grundstück. Das Grundstück wird in Kommission angeboten bzw. direkt von Dritten verkauft. Daher kann der o.g. Preis aufgrund aktueller Marktsituationen schwanken.
Die Bauabwicklung kann kurzfristig nach Grundstückserwerb begonnen werden. Bilder zeigen möglicherweise...
Anbieter der Immobilie
Schwabenhaus GmbH & Co. KG SchwabenhausWaldshutTiengen Silvia Busch
Gartenstraße 10, 79761 Waldshut-Tiengen
Online-ID: 2nz7j5m
Referenznummer: SH-371186
Finde Angebote wie dieses
Hier geht es zu unserem Impressum, den Allgemeinen Geschäftsbedingungen, den Hinweisen zum Datenschutz und nutzungsbasierter Online-Werbung.