

Grossmann & Berger GmbH
Frau Gabriele Böckmann
+49 ···
Nr. anzeigenPreise & Kosten
Provision für Käufer
3,57 % inkl. MwSt.
Lage
Diese Immobilie liegt in gesuchter Lage von Wedel, ganz nah zur Elbe, zum Willkomm-Höft und zum Yachthafen. Den Wedeler Stadtkern und die S-Bahn-Station erreichen Sie fußläufig in etwa 5-10 Minuten. Die Stadt Wedel ist ein bevorzugter Elbvorort mit gewachsenem Stadtkern und Anbindung an den Hamburger Verkehrsverbund. Von hier...
Die Wohnung
Kategorie
Maisonette
Wohnungslage
Erdgeschoss
Bezug
nach Absprache
Wohnanlage
Energie & Heizung
Warum sehe ich diese Anzeige? – Du siehst diese Anzeige basierend auf Ihrer Navigation auf unserer Website und den Suchkriterien, die du verwendet hast.
Energieausweistyp
Verbrauchsausweis
Gebäudetyp
Wohngebäude
Baujahr laut Energieausweis
2004
Wesentliche Energieträger
GAS
Gültigkeit
bis 30.08.2027
Effizienzklasse
D
Endenergieverbrauch
106,60 kWh/(m²·a)
Weitere Energiedaten
Energieträger
Gas
Heizungsart
Zentralheizung
Details
Objektbeschreibung
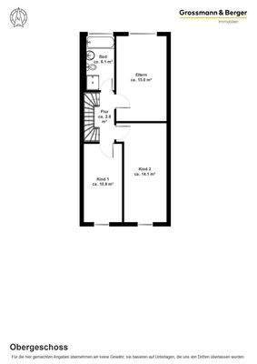
Die Eigentumswohnung mit einer Wohnfläche von ca. 108 m² erstreckt sich über das Erdgeschoss und das Obergeschoss eines im Jahr 2004 massiv erbauten Hauses. Direkt von der Wohnung aus gelangen Sie auch in den Keller, wo Ihnen ein ca. 46 m² großer Raum zur Verfügung steht. Die Wohnanlage umfasst insgesamt 64 Wohneinheiten...
Ausstattung
Diese gepflegte Wohnung ist hell und freundlich, dank der großen Fensterflächen. Das Wohnzimmer hat Zugang zu einer großen Terrasse mit einer kleinen Gartenfläche, perfekt für entspannte Stunden im Freien. Die Küche ist modern und mit hochwertigen Einbauten sowie allen wichtigen, neuwertigen, elektrischen Geräten...
Preisinformation
1 Tiefgaragenstellplatz, Kaufpreis: 25.000,00 EUR
Weitere Informationen
Stichworte
Nutzfläche: 48,00 m², Anzahl der Schlafzimmer: 3, Anzahl der Badezimmer: 1, Anzahl der separaten WCs: 1, Anzahl Terrassen: 1, Bundesland: Schleswig-Holstein, 2 Etagen, Distanz zum Kindergarten: 0.31, Distanz zur Grundschule: 0.22, Distanz zur nächsten Einkaufsmöglichkeit: 0.60, Distanz zum Gymnasium: 0.25...
Anbieter der Immobilie

Online-ID: 2nz735n
Referenznummer: WB 5705
Finde Angebote wie dieses
Hier geht es zu unserem Impressum, den Allgemeinen Geschäftsbedingungen, den Hinweisen zum Datenschutz und nutzungsbasierter Online-Werbung.