
BEST PLACE Immobilien GmbH & Co. KG
Ihr Best Place Vertriebsteam
004 ···
Nr. anzeigenPreise & Kosten
Provision für Käufer
provisionsfrei
Lage
Elephant Living liegt in einem ruhigen Wohngebiet in der Nähe des Arndtplatzes. Dort steht die moderne Skulptur "Kleine Elefanten", die gemeinsam mit der grau-blauen Fassade den Projektnamen inspiriert hat. Kitas, Schulen, Spiel- und Sportplätze sind fußläufig erreichbar, Supermärkte, Arztpraxen und Fitnessstudios in wenigen...
Die Wohnung
Wohnungslage
4. Geschoss (Dachgeschoss)
Wohnanlage
Energie & Heizung
Warum sehe ich diese Anzeige? – Du siehst diese Anzeige basierend auf Ihrer Navigation auf unserer Website und den Suchkriterien, die du verwendet hast.
Energieausweistyp
Verbrauchsausweis
Gebäudetyp
Wohngebäude
Baujahr laut Energieausweis
1906
Wesentliche Energieträger
GAS
Gültigkeit
bis 25.08.2031
Effizienzklasse
D
Endenergieverbrauch
111,80 kWh/(m²·a)
Weitere Energiedaten
Energieträger
Gas
Heizungsart
Zentralheizung
Details
Objektbeschreibung
Ein ruhiger Rückzugsort unter dem Dach, mit Blick ins Grüne: Diese charmante Wohnung im Dachgeschoss eines gepflegten Altbaus aus dem Jahr 1906 verbindet einladendes Wohnen mit liebevollen Details und einer gut durchdachten Raumaufteilung. Der offene Wohn-, Koch- und Essbereich bietet Platz für gemeinsames Kochen, Erzählen...
Ausstattung
. Westbalkon mit Zugang vom Wohn- und Schlafzimmer
. Großzügiger, offener Wohn-, Koch- und Essbereich
. Zwei flexibel nutzbare Zimmer für Schlafen, Arbeiten oder Kind
. Helles Bad mit Badewanne und Handtuchheizkörper
. Gepflegter Altbau (Baujahr 1906) mit charmanten Details
. Ruhiger, begrünter und geschützter...
Weitere Informationen
Stichworte
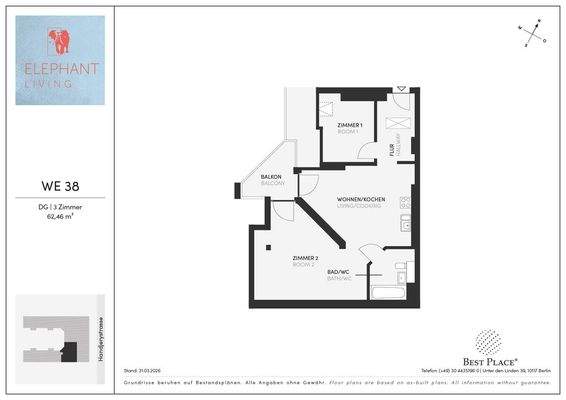
vermietbare Fläche: 62,46 m², Bundesland: Berlin, 4 Etagen, Wohnungsnr.: WE38
Anbieter der Immobilie
Online-ID: 2nz5t53
Referenznummer: HAND36-WE38
Finde Angebote wie dieses
Hier geht es zu unserem Impressum, den Allgemeinen Geschäftsbedingungen, den Hinweisen zum Datenschutz und nutzungsbasierter Online-Werbung.