
Vereinigte Volksbank Raiffeisenbank eG Immobilien Service
Herr Ralf Klingel
(06 ···
Nr. anzeigenPreise & Kosten
Provision für Käufer
provisionsfrei
Lage
- Attraktive Wohnlage in Bernkastel-Kues, einer der beliebtesten Wein- und Ferienregionen an der Mosel
- Angenehme Umgebung mit hoher Lebensqualität - geprägt von Weinbergen, Flussnähe und charmantem Stadtbild
- Gute Anbindung an die wichtigsten Bereiche des Ortes: Einkaufsmöglichkeiten, Ärzte, Apotheken und weitere...
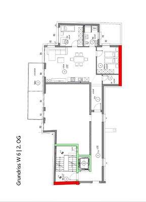
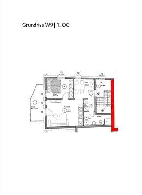
Die Wohnung
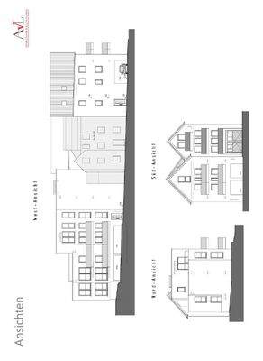
Wohnanlage
Energie & Heizung
Warum sehe ich diese Anzeige? – Du siehst diese Anzeige basierend auf Ihrer Navigation auf unserer Website und den Suchkriterien, die du verwendet hast.
Weitere Energiedaten
Heizungsart
Fußbodenheizung, Luft-/Wasser-Wärmepumpe
Details
Objektbeschreibung
Am Nikolausufer in Bernkastel-Kues mit Blick auf die Mosel und den Hafen entsteht eine neue Wohnanlage mit 10 Wohneinheiten. Acht der Einheiten sind barrierearm (eine davon rollstuhlgerecht) sowie zwei, die nicht barrierefrei sind. Der Neubau hat den KFW 40 EE - Standard und selbstverständlich Glasfaseranschluss. Durch die...
Preisinformation
3 Stellplätze, Kaufpreis je: 15.000,00 EUR
1 Garagenstellplatz, Kaufpreis: 25.000,00 EUR
8 Tiefgaragenstellplätze, Kaufpreis je: 18.000,00 EUR
Weitere Informationen
Stichworte
Anzahl der Schlafzimmer: 1, Anzahl der Badezimmer: 1, Anzahl Balkone: 1, 2 Etagen
Anbieter der Immobilie
Vereinigte Volksbank Raiffeisenbank eG Immobilien Service
Schlossplatz 2, 55469 Simmern
Online-ID: 2nz5k5m
Referenznummer: 2026-168
Finde Angebote wie dieses
Hier geht es zu unserem Impressum, den Allgemeinen Geschäftsbedingungen, den Hinweisen zum Datenschutz und nutzungsbasierter Online-Werbung.