

Dous Immobilien GmbH
Frau Pamela Lorenz
004 ···
Nr. anzeigenPreise & Kosten
Provision für Käufer
7,14 % inkl. MwSt.
Lage
Die Gemeinde Marxen, gelegen am Nordostrand des Naturparks Lüneburger Heide, bietet eine exklusive Wohnqualität im Landkreis Harburg. Einkaufsmöglichkeiten des täglichen Bedarfs, Ärzte, Schulen und Kindergärten befinden sich im benachbarten, schnell erreichbaren Hanstedt. Eingebettet in eine sanfte Hügellandschaft, geprägt...
Das Renditeobjekt
Kategorie
Mehrfamilienhaus
Baujahr
1920
Energie & Heizung
Warum sehe ich diese Anzeige? – Du siehst diese Anzeige basierend auf Ihrer Navigation auf unserer Website und den Suchkriterien, die du verwendet hast.
Energieausweistyp
Bedarfsausweis
Gebäudetyp
Wohngebäude
Baujahr laut Energieausweis
1920
Wesentliche Energieträger
GAS
Gültigkeit
bis 24.06.2034
Effizienzklasse
H
Endenergiebedarf
294,50 kWh/(m²·a)
Details
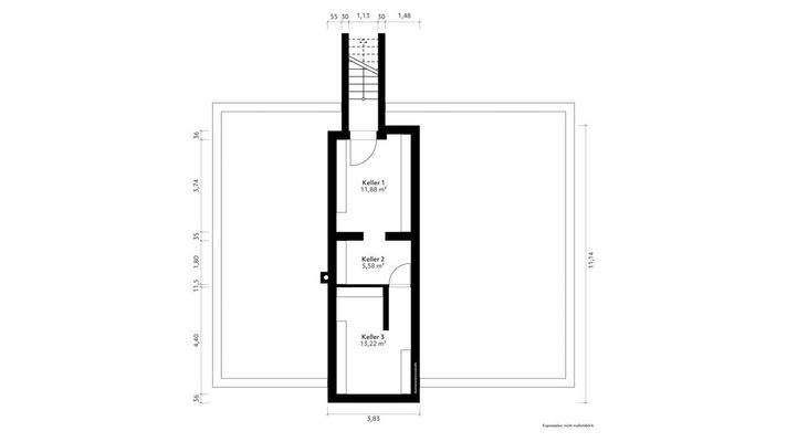
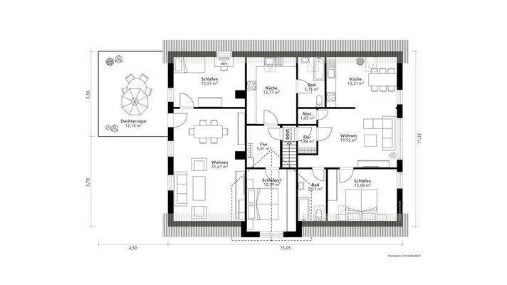
Objektbeschreibung
Sie investieren in ein Mehrfamilienhaus mit insgesamt 4 Wohneinheiten. Bei den Wohnungen handelt es sich um 2- bis 3-Zimmer-Wohnungen mit Größen zwischen 55 m² und 100 m². Zwei Wohnungen sind aktuell vermietet.
Das gesamte Grundstück ist 1.045 m² groß, die gesamte Wohnfläche beträgt 304 m².
Die Mieteinnahmen können bei...
Weitere Informationen
Stichworte
Wohnfläche: 304,00 m², vermietbare Fläche: 304,00 m², Anzahl der Wohneinheiten: 4
Anbieter der Immobilie

Online-ID: 2nz2a5w
Referenznummer: W-K-LG-26-013-P
Finde Angebote wie dieses
Hier geht es zu unserem Impressum, den Allgemeinen Geschäftsbedingungen, den Hinweisen zum Datenschutz und nutzungsbasierter Online-Werbung.