

IFC Immobiliengesellschaft mbH
Herr Paul-Ludwig Blümel
034 ···
Nr. anzeigenPreise & Kosten
Provision für Käufer
Die Provision beträgt 3,5 % vom Kaufpreis (zzgl. der geltenden MwSt.).
Lage
Braunsdorf überzeugt durch seine ruhige, ländliche Lage und gleichzeitig durch eine sehr gute Anbindung an wichtige Städte der Region.
Bis in das Stadtzentrum von Lutherstadt Wittenberg sind es lediglich rund 7,0 Kilometer. Dadurch lassen sich Einkaufsmöglichkeiten, Schulen, medizinische Versorgung sowie kulturelle...
Das Haus
Kategorie
Einfamilienhaus
Baujahr
1995
Energie & Heizung
Warum sehe ich diese Anzeige? – Du siehst diese Anzeige basierend auf Ihrer Navigation auf unserer Website und den Suchkriterien, die du verwendet hast.
Energieausweistyp
Verbrauchsausweis
Gebäudetyp
Wohngebäude
Baujahr laut Energieausweis
1995
Wesentliche Energieträger
Öl
Gültigkeit
15.07.2025 bis 14.07.2035
Effizienzklasse
C
Endenergieverbrauch
76,90 kWh/(m²·a)
Weitere Energiedaten
Energieträger
Öl
Heizungsart
offener Kamin
Details
Ausstattung
Dach:
ca. 1995 - Sparrendämmung, Tondachziegeleindeckung
- massive Filigrandecken, teilweise mit integrierter Beleuchtung
- Schornsteine mit Schindelverkleidung
Fassade:
ca. 1995 - geputzt und gestrichen
- einschaliges Porotonziegelmauerwerk (36,5 cm)
- Strukturputz, teilweise...
Weitere Informationen
Objektangaben
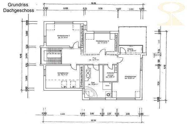
Raumaufteilung:
Erdgeschoss:
offener Wohn- und Essbereich mit Zugang zum Wintergarten und zur Terrasse, Küche mit separatem Vorratsraum, Gästezimmer, Gäste-Bad,
Hauswirtschaftsraum mit Zugang zur Terrasse, Hausanschlussraum, Diele mit Garderobe und...
Dokumente
Anbieter der Immobilie

Online-ID: 2nz275v
Referenznummer: 2055
Finde Angebote wie dieses
Hier geht es zu unserem Impressum, den Allgemeinen Geschäftsbedingungen, den Hinweisen zum Datenschutz und nutzungsbasierter Online-Werbung.