
Immokanal24
Herr E. Daniel Kanal
073 ···
Nr. anzeigenPreise & Kosten
Provision für Käufer
3,57 % inkl. 19 % MwSt.
Lage
Die Immobilie befindet sich im charmanten Städtchen Pappenheim im bayerischen Landkreis Weißenburg-Gunzenhausen. Pappenheim liegt malerisch im Naturpark Altmühltal und bietet eine idyllische Mischung aus historischer Substanz und naturnaher Umgebung. In fußläufiger Nähe finden sich alle wichtigen Infrastrukturen: Der Bahnhof...
Das Haus
Kategorie
Mehrfamilienhaus
Baujahr
1850
Derzeitige Nutzung
vermietet
Energie & Heizung
Warum sehe ich diese Anzeige? – Du siehst diese Anzeige basierend auf Ihrer Navigation auf unserer Website und den Suchkriterien, die du verwendet hast.
Energieausweis: für diesen Gebäudetyp nicht notwendig
Weitere Energiedaten
Energieträger
Gas
Heizungsart
Zentralheizung
Details
Objektbeschreibung
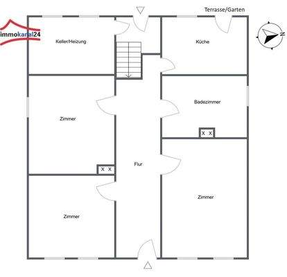
Zum Verkauf steht ein großzügiges Mehrfamilienhaus mit drei Einheiten.
Im Erdgeschoss befinden sich eine Küche, ein Badezimmer mit Fenster, drei Zimmer sowie ein Keller-/Heizraum und eine großzügige West-Terrasse.
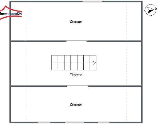
Das 1. Obergeschoss verfügt ebenfalls über eine Küche, ein tageslichthelles Badezimmer, drei...
Ausstattung
- Aktuell vermietet, KM 2150€
- Fassade 1999
- Neues Dach Bj. 2008
- Elektrik + Wasserleitungen 2000
- Gas-Zentral-Heizung Bj. 1997
- 1. OG Holzfenster Bj. 2000
- EG Kunststofffenster Bj. 2014
- Bad EG+OG 2000
- Bad + Küche DG 2017
- Wände innen verputzt 2000
- Spitzboden extra ca. 30...
Weitere Informationen
Bitte beachten: Anfragen ohne gültiger E-Mail-Adresse und Telefonnummer können nicht bearbeitet werden.
Alle Angaben ohne Gewähr. Die Inhalte dieses Exposés stammen vom Anbieter. Grundrisse sind nicht maßstabsgetreu. Für Daten Dritter übernehmen wir keine Haftung. Das Angebot ist nur für Sie bestimmt und darf nicht an...
Anbieter der Immobilie
Online-ID: 2nyzq5e
Referenznummer: 1763
Finde Angebote wie dieses
Hier geht es zu unserem Impressum, den Allgemeinen Geschäftsbedingungen, den Hinweisen zum Datenschutz und nutzungsbasierter Online-Werbung.