
IMMOcontract Immobilien Vermittlung GmbH
Herr Julian Pelzmann
+43 ···
Nr. anzeigenPreise & Kosten
Provision für Käufer
3% des Kaufpreises zzgl. 20% USt.
Lage
Die Liegenschaft befindet sich in herausragender Premiumlage am sonnigen Hang des Hexenbergs in Hainburg an der Donau und zählt zu den exklusivsten Wohnadressen der Region. Die erhöhte Position vereint Weitblick, Privatsphäre und Ruhe in besonderer Qualität und bietet ein Wohnumfeld mit hohem Repräsentations- und...
Das Haus
Kategorie
Einfamilienhaus
Baujahr
1995
Bezug
sofort
Energie & Heizung
Warum sehe ich diese Anzeige? – Du siehst diese Anzeige basierend auf Ihrer Navigation auf unserer Website und den Suchkriterien, die du verwendet hast.
Heizwärmebedarf (HWB)
109,40 kWh/(m²·a)
Gesamtenergieeffizienz (fGEE)
2,59
Weitere Energiedaten
Haustyp
Massivhaus
Energieträger
Elektro, Gas
Heizungsart
Fußbodenheizung, offener Kamin
Details
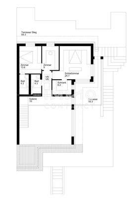
Objektbeschreibung
Diese außergewöhnliche Architektenvilla vereint Panorama, Privatsphäre und Designqualität in einer der begehrtesten Hanglagen am Hexenberg in der Carnuntumstraße. Auf einem großzügigen, sonnigen Grundstück gelegen, bietet das Anwesen ein seltenes Gesamtpaket aus exklusiver Wohnarchitektur, hochwertiger Generalsanierung und...
Weitere Informationen
Sonstiges
OBJEKTTYP
* Architektenvilla mit Gästehaus und Gartenanlage
LAGE
* exklusive Hanglage am Hexenberg, Carnuntumstraße, Hainburg an der Donau
* Fernblick über die Donauauen bis Richtung Wien und Bratislava
GRUNDSTÜCK
* ca. 1.678 m² lt. Grundbuch - (Optionale...
Anbieter der Immobilie
IMMOcontract Immobilien Vermittlung GmbH
Schnirchgasse 17, 1030 WIEN
Online-ID: 2nyxh5h
Referenznummer: OBGC202602030912115050cfdaa9cce
Finde Angebote wie dieses
Günstige Immobilienfinanzierung einfach online berechnen
Persönliches Angebot berechnenWarum sehe ich diese Werbung? – Du siehst diese Werbung basierend auf Deiner Navigation auf unserer Website und der von Dir verwendeten Suchkriterien.
Diese Werbung wird bezahlt von durchblicker
Werbung melden
Hier geht es zu unserem Impressum, den Allgemeinen Geschäftsbedingungen, den Hinweisen zum Datenschutz und nutzungsbasierter Online-Werbung.