
Italia Immobilien
Frau Nadia Manuela Aron
004 ···
Nr. anzeigenPreise & Kosten
Provision für Käufer
3,66 % inkl. MwSt. inkl. MwSt.
Lage
La Salceta liegt mitten in der Natur und ist frei von störenden Elementen; der Fluss Ombrone fließt nur wenige hundert Meter entfernt. Nur 20 Kilometer trennen es von dem wunderschönen Ort Montalcino, 45 Kilometer von der Stadt Siena und Pienza. Der Park der Maremma mit seinen schönen Stränden ist etwa 60 Kilometer entfernt.
Das Haus
Kategorie
Bauernhaus
Baujahr
1800
Details
Objektbeschreibung
La Salceta ist ein wunderschönes Anwesen im Val d'Orcia Senese, inmitten von Brunello-Weinbergen, mittelalterlichen Ortschaften und Schlössern. Es besteht aus drei alten Gebäuden und einem Grundstück von etwa 4 Hektar.
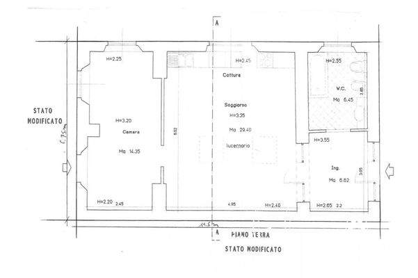
Das Hauptgebäude erstreckt sich über zwei Ebenen mit einer Gesamtfläche von ca. 432 qm und ist in...
Weitere Informationen
Stichworte
Gesamtfläche: 634,00 m², Anzahl der Schlafzimmer: 8, Anzahl der Badezimmer: 4, 2 Etagen, Distanz zur nächsten Einkaufsmöglichkeit: 17.00, Distanz zum Flughafen: 230.00, Distanz zum Hauptbahnhof: 20.00
Anbieter der Immobilie
Online-ID: 2nywl5x
Referenznummer: IT-00926
Finde Angebote wie dieses
Hier geht es zu unserem Impressum, den Allgemeinen Geschäftsbedingungen, den Hinweisen zum Datenschutz und nutzungsbasierter Online-Werbung.