
Hausmeisterservice Riedel GmbH
Frau Mandy Bilz
+49 ···
Nr. anzeigenPreise & Kosten
Kaution
616,00
Warum sehe ich diese Anzeige? – Du siehst diese Anzeige basierend auf Ihrer Navigation auf unserer Website und den Suchkriterien, die du verwendet hast.
Lage
Mit wenigen Schritten erreichen Sie die Wolkensteiner Straße mit Ihren zahlreichen Geschäften, den Marktplatz
von Annaberg oder die Buchholzer Straße mit vielen Geschäften des täglichen Bedarfes,
dem Kino und einem Eiscafé.
Eine Grund-und Mittelschule ist nur einen Steinwurf entfernt. Auch ein Kindergarten ist...
Die Wohnung
Wohnungslage
Dachgeschoss
Bezug
01.06.2026
Derzeitige Nutzung
vermietet
Wohnanlage
Energie & Heizung
Warum sehe ich diese Anzeige? – Du siehst diese Anzeige basierend auf Ihrer Navigation auf unserer Website und den Suchkriterien, die du verwendet hast.
Energieausweistyp
Verbrauchsausweis
Gebäudetyp
Wohngebäude
Baujahr laut Energieausweis
1995
Wesentliche Energieträger
Erdgas
Gültigkeit
17.06.2016 bis 01.06.2026
Effizienzklasse
D
Endenergieverbrauch
111,85 kWh/(m²·a) - Warmwasser enthalten
Weitere Energiedaten
Energieträger
Gas
Heizungsart
Etagenheizung
Details
Objektbeschreibung
Diese Wohnung wird kann ab 01.05.26 oder 01.06.26 wieder angemietet werden. Ein Mietbeginn kann mit dem aktuellen Mieter und uns flexibel abgestimmt werden.
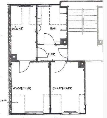
Die 2-Raumwohnung im Dachgeschoss eines gepflegten Mehrfamilienhauses wurde in 2022 frisch renoviert. Sie befindet sich im Herzen der Altstadt von Annaberg.
Vom...
Ausstattung
- Dusche & Badewanne
- Tageslichtbad
- Gasetagenheizung
- zentrale Lage
Weitere Informationen
Stichworte
Anzahl der Schlafzimmer: 1, Anzahl der Badezimmer: 1
Anbieter der Immobilie

Hausmeisterservice Riedel GmbH
Online-ID: 2nyvn5y
Referenznummer: 1611
Finde Angebote wie dieses
Weitere Immobilien
Hier geht es zu unserem Impressum, den Allgemeinen Geschäftsbedingungen, den Hinweisen zum Datenschutz und nutzungsbasierter Online-Werbung.