
BEST PLACE Immobilien GmbH & Co. KG
Ihr Best Place Vertriebsteam Frankfurt
004 ···
Nr. anzeigenPreise & Kosten
Provision für Käufer
provisionsfrei
Lage
. Ruhige Wohnlage in Ober-Mörlen
. 290 m zu Fuß zu Einkaufsmöglichkeiten
. 800 m zu Fuß zu Kindergarten und Grundschule
. 4 Min. mit dem Fahrrad ins Ortszentrum
. 5 Min. mit dem Auto zur Auffahrt A5
. 12 Min. mit dem Auto nach Bad Nauheim
. 35 km mit dem Auto bis nach Frankfurt am Main
. Grün- und...
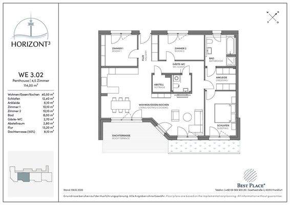
Die Wohnung
Wohnungslage
3. Geschoss (Dachgeschoss)
Wohnanlage
Energie & Heizung
Warum sehe ich diese Anzeige? – Du siehst diese Anzeige basierend auf Ihrer Navigation auf unserer Website und den Suchkriterien, die du verwendet hast.
Energieausweistyp
Bedarfsausweis
Gebäudetyp
Wohngebäude
Baujahr laut Energieausweis
2026
Wesentliche Energieträger
ELECTRICITY
Gültigkeit
bis 12.09.1935
Endenergiebedarf
11,40 kWh/(m²·a)
Weitere Energiedaten
Energieträger
Elektro
Heizungsart
Fußbodenheizung
Details
Objektbeschreibung
Ankommen, durchatmen, zuhause sein. Dieser moderne Rückzugsort im Neubauprojekt "Horizont³" verbindet zeitgemäße Architektur mit durchdachter Funktionalität. Der offen konzipierte Wohn-, Koch- und Essbereich bildet das Herzstück der Wohnung und öffnet sich direkt zur sonnigen Südost-Dachterrasse. Großzügige, bodentiefe...
Ausstattung
. Neubau - Erstbezug Q4´2027
. Dachterrasse mit Südost-Ausrichtung
. Bodentiefe Fenster 3fach Verglasung
. Fußbodenheizung und Parkett
. Markensanitär
. Hauswirtschaftsraum
. Energieeffizienzklasse A+
. KfW-Effizienzhaus 40 mit QNG-Zertifikat
. Provisionsfrei für den Käufer
. Aufzug
Weitere Informationen
Stichworte
Stellplatz vorhanden, vermietbare Fläche: 114,00 m², Bundesland: Hessen, 3 Etagen, Wohnungsnr.: WE 302
Anbieter der Immobilie
Online-ID: 2nytt5s
Referenznummer: GAUL-WE302
Finde Angebote wie dieses
Hier geht es zu unserem Impressum, den Allgemeinen Geschäftsbedingungen, den Hinweisen zum Datenschutz und nutzungsbasierter Online-Werbung.